A Écurie, découvrez cette belle maison individuelle bâtie sur 528 m² orientés sud-ouest, clôturé et gazonné, dans un quartier calme et recherché, proche des écoles, commerces et axes principaux.
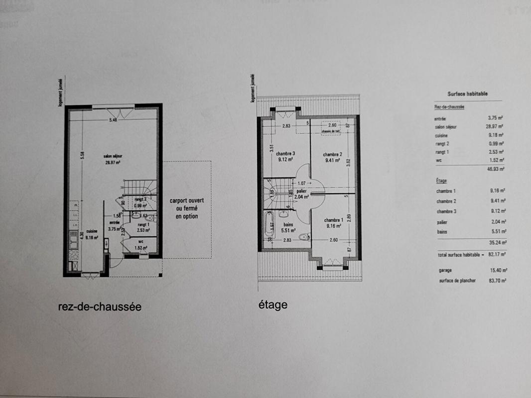
Elle offre une spacieuse pièce de vie baignée de lumière avec deux baies vitrées, une cuisine ouverte moderne, WC séparés et buanderie.
A l'étage : 4 chambres, dont une suite parentale avec salle de douche, ainsi qu'une salle de bains avec baignoire et WC.
Un bien alliant confort, luminosité et emplacement idéal ? parfait pour une vie de famille.
Prix: 301 000 euros frais d'agence à la charge vendeur .
Pour visiter et vous accompagner dans votre projet, contactez Corinne DEFRANCE, au 0678664329 ou, par courriel à c.defrance@proprietes-privees.com.
Selon l'article L.561.5 du Code Monétaire et Financier, pour l'organisation de la visite, la présentation d'une pièce d'identité vous sera demandée.
Cette présente annonce a été rédigée sous la responsabilité éditoriale de Corinne DEFRANCE agissant sous le statut d'agent commercial immatriculé au RSAC Douai 822355244 auprès de SAS PROPRIETES PRIVEES, au capital de 44 920 euros, ZAC LE CHÊNE FERRÉ - 44 ALLÉE DES CINQ CONTINENTS 44120 VERTOU; SIRET 487 624 777 00040, RCS Nantes. Carte Professionnelle Transactions sur immeubles et fonds de commerce (T) et Gestion immobilière (G) n°CPI 4401 2016 000 010 388 délivrée par la CCI Nantes - Saint Nazaire. Compte séquestre n°30932508467 BPA SAINT-SEBASTIEN-SUR-LOIRE (44230). Garantie GALIAN-SMABTP - 89 rue de la Boétie, 75008 Paris - n°28137 J pour 2 000 000 euros pour T et 120 000 euros pour G. Assurance responsabilité civile professionnelle par GALIAN-SMABTP n° de police 28137.J
Mandat réf : 429 185. - Le professionnel garantit et sécurise votre projet immobilier.
Corinne DEFRANCE (EI) Agent Commercial - Numéro RSAC : douai 822355244 - .
Les informations sur les risques auxquels ce bien est exposé sont disponibles sur le site Géorisques : www. georisques. gouv. fr
117 m²
2 923 €
5
4
1
Oui
Contact Exp France Corinne SIRIEIX
Contacter gratuitement à l'aide du formulaire ci-dessous.