ABRACADABRA Isolation extérieure + système de ventilation F -> D (31 900 euros) + ajout de différentiels 30 mA, enlèvement de la tapisserie, un coup de pinceau, shopping cuisine et nouvelles salles de bain et LA MAGIE OPERE !! UNE MAISON AUX VOLUMES INCROYABLES ET FLAMBANT NEUVE !
La PORTE D'ENTREE et toutes les FENÊTRES ET PORTES-FENÊTRES ont DEJA ETE CHANGEES avec VOLETS ELECTRIQUES ET LA CENTRALE QUI VA AVEC !
Vous aimez les grandes pièces, le bricolage et le shopping ? Cette maison est faite pour vous !
MAISON BI-FAMILLE ou GRANDE MAISON FAMILIALE qui allie ESPACE, CONFORT et CONVIVIALITE..
Dès votre arrivée, découvrez une entrée aérée et lumineuse avec rangements intégrés pour vos vestes et chaussures.
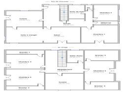
La pièce maîtresse de cette maison est sans conteste sa GRANDE CUISINE FAMILIALE DE PLUS DE 16 m2 qui possède un ACCES à une belle TERRASSE ENSOLEILLEE et à la salle à manger. Si vous aimez les CUISINES OUVERTES, imaginez vous l'espace incroyable que vous auriez, baigné de lumière traversante et idéal pour des moments de convivialité extraordinaires. La salle à manger étant déjà ouverte sur l'espace salon, qui lui aussi possède un accès à la terrasse avec vue sur le jardin.
Toujours au rdc, DEUX GRANDES CHAMBRES, une SALLE DE BAIN COMPLETE avec baignoire, douche, lavabo et fenêtre pour une luminosité et une aération optimales, ainsi qu'un WC INDEPENDANT (avec fenêtre) et un CELLIER pratique qui complète cet espace de vie fonctionnel.
À l'étage, un spacieux pallier lumineux qui dessert QUATRE AUTRES GRANDES CHAMBRES, dont trois avec ACCES à de charmantes TERRASSES, idéales pour profiter du calme et de la LUMIERE NATURELLE. Vous apprécierez également de nombreux rangements supplémentaires et une salle d'eau avec lavabo, douche et WC (avec fenêtre).
Le SOUS-SOL COMPLET sous toute la maison, doté d'un DOUBLE GARAGE, offre un espace idéal pour le bricolage et le stockage.
Si par grand malheur, vous manquiez encore de place, sachez que vous possédez encore un GRENIER à exploiter.
Enfin, le TERRAIN CLOS ET ARBORE, agrémenté d'ARBRES FRUITIERS, invite à la détente, aux jeux en famille ou aux apéritifs entre amis dans un cadre paisible et verdoyant.
Une maison prête à accueillir votre futur projet de vie !
Et vous ? Etes vous prêts à relever les manches pour vous offrir votre maison de rêve ? Cette annonce vous est proposée par Madame SARAH BONNOTTE - EI - NoRSAC: 899 184 832, Enregistré à Greffe du tribunal de commerce de COLMAR - Annonce rédigée et publiée par un Agent Mandataire -
190.2 m²
1 840 €
8
6
2
2
1969
Oui
2
2
Consommations énergétiques
Logement économe
341
Logement énergivore (kWhEP/m2/an)
Émissions de gaz à effet de serre
Faible émission de GES
50
Forte émission de GES(kgeqCO2/m2/an)
Contact Sarah Bonnotte
Contacter gratuitement à l'aide du formulaire ci-dessous.