Honoraires à la charge de l'acquéreur (Prix hors honoraires : 380000 euros).
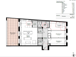
EXCLUSIF - BELFORT - Carré d'Or - Magnifique T6 en duplex (Réf VB3728) Magnifique appartement T6 de 166 m2 en duplex, en 1er étage d'un bel immeuble de caractère, offrant de très beaux volumes et une belle luminosité. Vaste salon-séjour donnant accès sur 2 beaux balcons, cuisine entièrement équipée, Grande salle de bains avec baignoire et douche, et salle de douche, 4 belles chambres, buanderie, et de nombreux espaces de rangement viennent parfaire le confort du quotidien. Atout rare : une vue dégagée sur un parc, apportant calme et verdure, pour un cadre de vie privilégié à proximité de toutes les commodités. Un bien d'exception, alliant espace, luminosité et sérénité, à découvrir sans tarder. Les informations sur les risques auxquels ce bien est exposé sont disponibles sur le site Géorisques : www.georisques.gouv.fr