Situé à ALLINGES, projet de maison de 85 m².
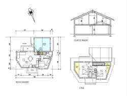
Terrain vendu avec Permis de construire accepté purgé de tous recours, pour une maison individuelle d'environ 85m², 3 chambres et un garage.
Viabilités à proximité immédiate.
Terrain libre de tout constructeur.
Prix de vente 140.000 euros Frais d'agence inclus, honoraires à la charge du vendeur.
Pour visiter et vous accompagner dans votre projet, contactez Clémence GUIBERT, au 0625537224 ou, par courriel à cl.guibert@proprietes-privees.com.
Selon l'article L.561.5 du Code Monétaire et Financier, pour l'organisation de la visite, la présentation d'une pièce d'identité vous sera demandée.
Cette présente annonce a été rédigée sous la responsabilité éditoriale de Clémence GUIBERT agissant sous le statut d'agent commercial immatriculé au RSAC 982339525 auprès de SAS PROPRIETES PRIVEES, au capital de 44 920 euros, ZAC LE CHÊNE FERRÉ - 44 ALLÉE DES CINQ CONTINENTS 44120 VERTOU; SIRET 487 624 777 00040, RCS Nantes. Carte Professionnelle Transactions sur immeubles et fonds de commerce (T) et Gestion immobilière (G) n°CPI 4401 2016 000 010 388 délivrée par la CCI Nantes - Saint Nazaire. Compte séquestre n°30932508467 BPA SAINT-SEBASTIEN-SUR-LOIRE (44230). Garantie GALIAN-SMABTP - 89 rue de la Boétie, 75008 Paris - n°28137 J pour 2 000 000 euros pour T et 120 000 euros pour G. Assurance responsabilité civile professionnelle par GALIAN-SMABTP n° de police 28137.J
Mandat réf : 404662- Le professionnel garantit et sécurise votre projet immobilier.
Clémence GUIBERT (EI) Agent Commercial - Numéro RSAC : 982339525 - .
Les informations sur les risques auxquels ce bien est exposé sont disponibles sur le site Géorisques : www. georisques. gouv. fr
Clémence GUIBERT (EI) Agent Commercial - Numéro RSAC : 982339525 - .
453 m²
309 €
453 m²
4
Oui
Contact GUIBERT
Contacter gratuitement à l'aide du formulaire ci-dessous.