Honoraires à la charge de l'acquéreur (Prix hors honoraires : 276000 euros).
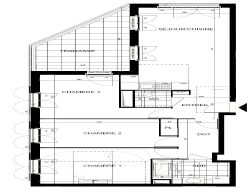
Devenez propriétaire en hypercentre des Clayes sous Bois grâce à un prix nettement inférieur au marché. Capitaliser plutôt que de verser des loyers à fonds perdus, TVA réduite *, dispositif éligible au PTZ et frais de notaire réduits, ce sont les avantages du Bail Réel Solidaire. ACH'Transactions, le spécialiste du BRS, vous présente GREEN SQUARE, une résidence au coeur d'un quartier dynamique, à 3 min à pied de la gare. F4 de 78,84 m2 au 1er étage avec terrasse de 13 m2 et stationnement en sous-sol. Prix de vente : 276.000 euros + redevance mensuelle de 159 euros (indexée). Bail de 99 ans.
NOUS CONTACTER AU 07 45 03 84 73 POUR PLUS D'INFORMATIONS
*(1) TVA à taux réduit sous réserve que les conditions de l'article 278 11° du code général des impôts soient remplies.
Dans une copropriété de 80 lots. Aucune procédure n'est en cours. Non soumis au DPE. Les informations sur les risques auxquels ce bien est exposé sont disponibles sur le site Géorisques : georisques.gouv.fr.