FLOIRAC - Appartement T2 de 60 m2 avec terrasses et parking
Floirac 33270
0
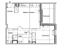
FLOIRAC centre - T2 avec terrasse A decouvrir cet agréable T2 de 60m2 avec une belle terrasse exposé Est. Il est situé dans une résidence sécurisée à proximité des commerces et des transports. Il dispose d'une entrée avec placard, d'un espace de vie avec cuisine ouverte donnant accès à la terrasse de 10m2 et d'un cellier. Coté nuit vous disposez d'une chambre et d'une salle d'eau indépendante. Place de parking en sous-sol sécurisé. Emplacement premium à moins de 5 minutes à pied de toutes les commodités (poste, banque, boulangerie-pâtisserie, pharmacie, tabac-presse, supérette, bar). Les écoles et le collège sont également accessibles à pied, et l'Arkéa Arena se trouve à seulement 9 minutes. Vous n'avez plus qu'à poser vos valises dans ce cadre de vie privilégié ! Prix diminué grâce à la TVA réduite à 5,5 % (nous contacter pour vérifier votre éligibilité) et FRAIS DE NOTAIRES OFFERT. Contactez votre agence Fanny Dupain Immobilier pour organiser une visite 06.31.55.72.62 !!
60 m²
3 867 €
27 m²
2
1
1
1
3 sur 4
2024
Est
Oui
1
1
Consommations énergétiques
Logement économe
55
Logement énergivore (kWhEP/m2/an)
Émissions de gaz à effet de serre
Faible émission de GES
2
Forte émission de GES(kgeqCO2/m2/an)
Contact Iad France - Linda BRIGE
Contacter gratuitement à l'aide du formulaire ci-dessous.