GIERES, au coeur du village, appartement en étage élevé, lumi
Gières 38610
0
Honoraires à la charge du vendeur.
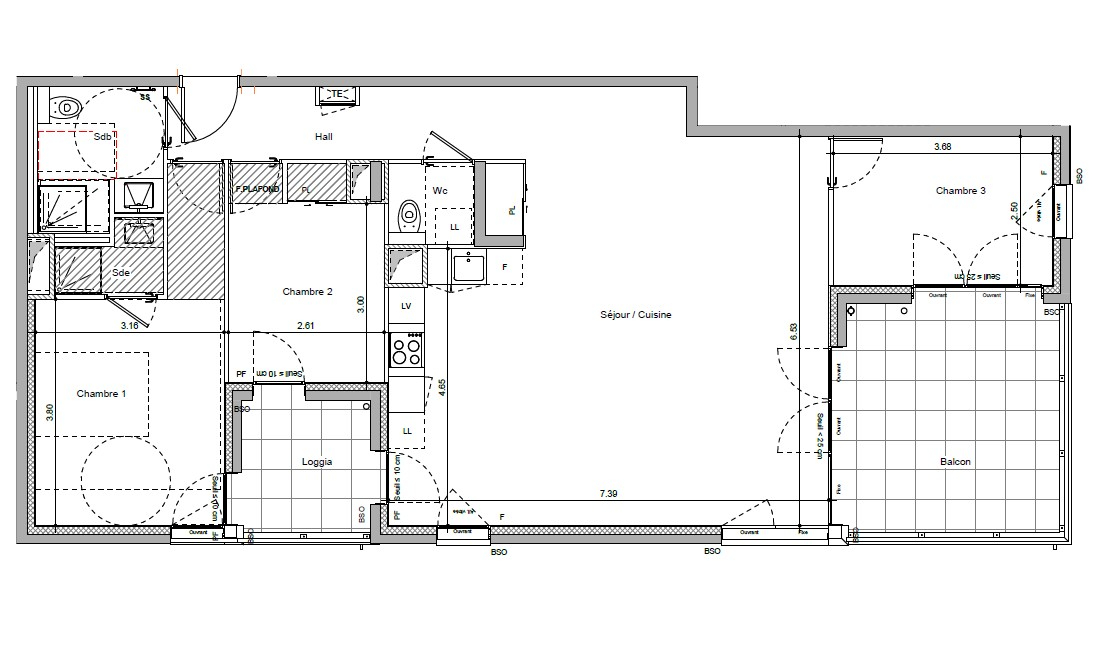
Situé dans le centre ville de Gières, cet appartement lumineux et spacieux a été entièrement refait. Niché dans une résidence sécurisée de standing avec un parc privatif, il est situé en étage élevé et offre une vue imprenable sur les montagnes environnantes. L'appartement est composé d'un hall d'entrée, d'un spacieux séjour avec une cuisine ouverte entièrement équipée donnant sur un grand balcon, de trois chambres, dont une avec salle d'eau et dressing, d'une salle de bains avec WC et d'un WC indépendant. Une cave est également incluse dans le prix de vente.
Honoraires à la charge du vendeur. Dans une copropriété de 120 lots. Quote-part moyenne du budget prévisionnel 3 209,08 /an. Aucune procédure n'est en cours. Classe énergie D, Classe climat D Montant estimé des dépenses annuelles d'énergie pour un usage standard : entre 1850.00 et 2550.00 sur les années 2021, 2022 et 2023 (abonnements compris). Les informations sur les risques auxquels ce bien est exposé sont disponibles sur le site Géorisques : georisques.gouv.fr.