GRAND T3 DE 74 M² ? LIMITE LYON 5 / TASSIN / POINT DU JOUR
Lyon 69005
0
GRAND T3 DE 74 M² ? LIMITE LYON 5 / TASSIN / POINT DU JOUR
Découvrez ce spacieux et lumineux T3 de 74 m² idéalement situé à la croisée de Lyon 5, Tassin et le Point du Jour. Niché en étage élevé, cet appartement offre une vue imprenable et dégagée, idéale pour profiter d'un cadre de vie paisible et agréable.
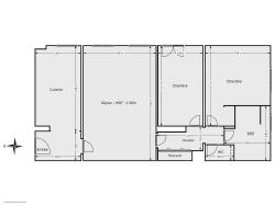
Description du bien :
- salon spacieux
- cuisine équipée
- deux chambres
- SDB et WC séparés
Les atouts du bien :
- Surface : 74 m² avec une belle distribution des espaces
- Étage élevé : vue exceptionnelle et grande luminosité
- Proximité : à deux pas des commerces, écoles et transports pour un quotidien facilité
- Résidence calme et sécurisée
- garage, cave et local à vélo
Ce bien est parfait pour les familles, les jeunes couples ou toute personne souhaitant profiter d'un cadre de vie alliant commodités et tranquillité.
Ce bien vous plaît ? Appelez l'agent Jocelyne CATY 0660988344 (Agent commercial inscrit au RSAC de Fréjus 445100571pour échanger sur ce bien. Liberkeys, votre agence immobilière en mieux. Humaine, transparente et réactive pour les vendeurs et acheteurs. Les informations sur les risques auxquels ce bien est exposé sont disponibles sur le site Géorisques : https://www.georisques.gouv.fr
.
73 m²
3 014 €
3
2
1
1
9 sur 20
1970
Oui
Oui
Consommations énergétiques
Logement économe
224
Logement énergivore (kWhEP/m2/an)
Émissions de gaz à effet de serre
Faible émission de GES
44
Forte émission de GES(kgeqCO2/m2/an)
Contact Jocelyne Caty
Contacter gratuitement à l'aide du formulaire ci-dessous.