L'exception sur l'Ile d'Oléron : Plein front de Mer, face au soleil levant au 8 bd de la Plage à SAINT TROJAN.
Une restauration d'un bâtiment historique de grand standing : Seulement 22 appartements et 11 Maisons, dans un domaine paysager privé avec piscine chauffée. Frais de notaire réduits.
Prestations de qualité, chauffe-eau thermodynamiques+panneaux rayonnants, ascenseur, parkings, caves, grande hauteur sous plafonds, parquets, domotique, placards terminés, carrelage Porcelanosa, appartements traversants : tout a été pensé pour votre confort.
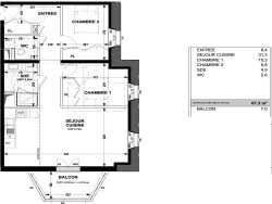
Beau T3 2è étage avec double expo : - Front de mer Est, face au Soleil Levant - Expo sud avec terrasse Parking et cave inclus.
Honoraires à la charge du vendeur. Non soumis au DPE. Les informations sur les risques auxquels ce bien est exposé sont disponibles sur le site Géorisques : georisques.gouv.fr.
Votre conseiller MON BIEN A LA MER : Gérant - .fr MON BIEN A LA MER Carte T CPI 2201 2018 000 025 040 RCP ACM IARD B1 7025278
67 m²
8 396 €
3
2
1
1 (séparé)
2 sur 3
1
1
Contact mon bien à la mer
Contacter gratuitement à l'aide du formulaire ci-dessous.