GUÉRANDE CENTRE - Appartement T4 en duplex d'environ 84 m² utiles
Guérande 44350
0
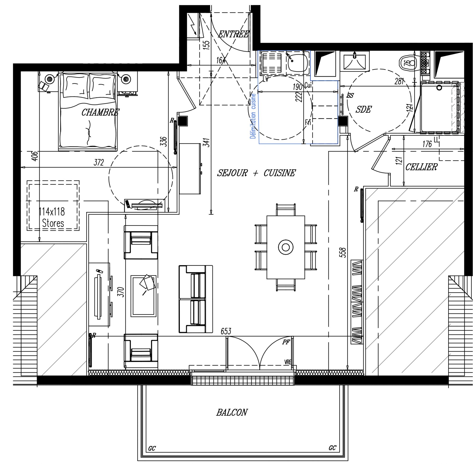
EN EXCLUSIVITÉ - 44350 GUÉRANDE CENTRE, commerces à pieds. En face des remparts, je vous propose cet appartement T4 en duplex d'environ 84 m² utiles (73,68 m² loi carrez) situé au 2ème étage avec ascenseur. Eric PIRAUD vous propose cet agréable et confortable en excellent état, composé au 1er niveau d'une d'entrée, d'une pièce de vie lumineuse, une cuisine aménagée et équipée, 2 chambres, une salle de bains et un WC indépendant. Au niveau supérieur : une vaste pièce pouvant accueillir une 3ème chambre. Vous disposerez en extérieur d'un garage fermé et d'une place de parking. Au sous-sol une cave complète ce bien. Venez vite le découvrir. Budget : 317 170 euros, honoraires d'agence réduits inclus (3,99% TTC charge acquéreur) soit 305 000 euros hors honoraires. Réservez sans attendre votre visite auprès de votre conseiller local Eric PIRAUD au 07.86.68.65.07 ou par mail e.piraud@proprietes-privees.com agissant sous le statut d'agent commercial pour la SAS PROPRIETES-PRIVEES - RCS 487 624 777, présent sur toute la Presqu'île. DPE : Classe D - GES : classe B. Montant moyen estimé des dépenses annuelles d'énergie pour un usage standard établi à partir des prix de l'énergie de l'année 2021 : entre 1010 et 1410 euros.
Selon l'article L.561.5 du Code Monétaire et Financier, pour l'organisation de la visite, la présentation d'une pièce d'identité vous sera demandée.
Cette présente annonce a été rédigée sous la responsabilité éditoriale de Éric PIRAUD agissant sous le statut d'agent commercial immatriculé au RSAC SAINT NAZAIRE 788487403 auprès de SAS PROPRIETES PRIVEES, au capital de 44 920 euros, ZAC LE CHÊNE FERRÉ - 44 ALLÉE DES CINQ CONTINENTS 44120 VERTOU; SIRET 487 624 777 00040, RCS Nantes. Carte Professionnelle Transactions sur immeubles et fonds de commerce (T) et Gestion immobilière (G) n°CPI 4401 2016 000 010 388 délivrée par la CCI Nantes - Saint Nazaire. Compte séquestre n°30932508467 BPA SAINT-SEBASTIEN-SUR-LOIRE (44230). Garantie GALIAN-SMABTP - 89 rue de la Boétie, 75008 Paris - n°28137 J pour 2 000 000 euros pour T et 120 000 euros pour G. Assurance responsabilité civile professionnelle par GALIAN-SMABTP n° de police 28137.J
Les informations sur les risques auxquels ce bien est exposé sont disponibles sur le site Géorisques : www.georisques.gouv,fr
Mandat réf : 393618EPI - Le professionnel vous conseille, garantit et sécurise votre projet immobilier. ESTIMATION OFFERTE de votre bien au 07.86.68.65.07. (3.99 % honoraires TTC à la charge de l'acquéreur.)
Éric PIRAUD (EI) Agent Commercial - Numéro RSAC : SAINT NAZAIRE 788487403 - .
84 m²
3 776 €
4
3
1
1
2
1997
Aménagée
Oui
Oui
Consommations énergétiques
Logement économe
220
Logement énergivore (kWhEP/m2/an)
Émissions de gaz à effet de serre
Faible émission de GES
7
Forte émission de GES(kgeqCO2/m2/an)
Contact Éric PIRAUD
Contacter gratuitement à l'aide du formulaire ci-dessous.