A SAISIR RAPIDEMENT, deux appartements en duplex avec terrasse privative sur la charmante commune de Saint Victor sur Rhins.
PIETRAPOLIS vous propose un concept innovant et original dans un ancien bâtiment industriel. Cette ancienne usine de textile fait l'objet d'une réhabilitation de qualité (matériaux biosourcés, isolation laine de bois, chauffage pompe à chaleur, huisseries Bois/Alu, parquets en chêne, panneaux photovoltaïques)
L'ensemble immobilier sera composé de six logements indépendants, d'un lieu commun, d'un patio, de plusieurs places de stationnement et des espaces extérieurs privatifs. Un esprit de mutualisation est mis en avant, à la conviction de chacun, autant pour la redistribution de l'électricité des logements que pour les lieux communs tels que atelier, salle commune, buanderie, cave...afin de permettre la création d'un lieu ouvert et dynamique.
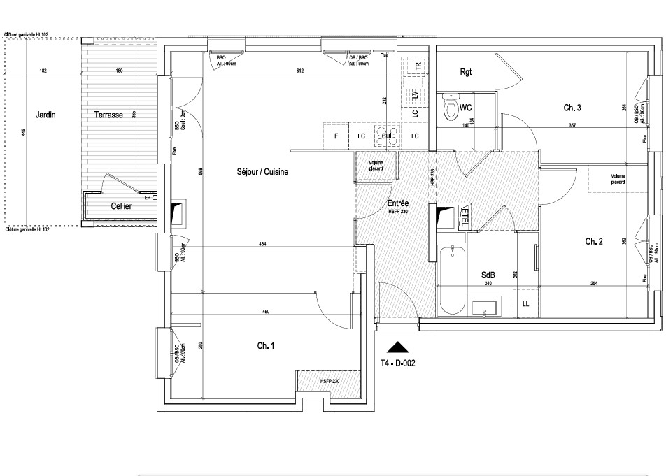
La composition des appartements sera la suivante: * Type T4 en duplex d'une surface de 112m² comprend en rez-de-chaussée entrée, pièce de vie, cellier, deux chambres, salle d'eau et Wc, en R+1, mezzanine et une chambre sera proposé au prix de 270.000 * Type T5 en duplex d'une surface de 105m² comprend en rez-de-chaussée entrée, pièce de vie, dégagement, deux chambres, salle d'eau et Wc, en R+1, mezzanine et deux chambres, sera proposé au prix de 289.000
Points forts: - Logements traversants et lumineux - Terrasses privatives côté Sud dans un cadre bucolique le long du Rhins - Proximité des commerces et de la gare SNCF
Votre contact pour ce bien : Nathalie LAFAURIE 06 74 57 77 82 ou n.lafaurie@pietrapolis.fr
Honoraires à la charge du vendeur. Dans une copropriété de 8 lots. Aucune procédure n'est en cours. Non soumis au DPE. Les informations sur les risques auxquels ce bien est exposé sont disponibles sur le site Géorisques : georisques.gouv.fr. Ce bien vous est proposé par un agent commercial (Entreprise individuelle).
Votre conseiller Pietrapolis Tarare - Vallée d'Azergues - St Symphorien de Lay : Nathalie LAFAURIE Agent commercial (Entreprise individuelle)
112 m²
2 411 €
4
3
1
1 (séparé)
2025
1
Oui (8 lots)
Contact Nathalie LAFAURIE
Contacter gratuitement à l'aide du formulaire ci-dessous.