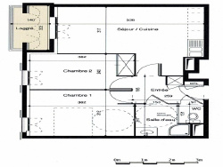
EXCLUSIVITE - A Toulon, quartier Haute Ville, à 2 pas de la Place de la Liberté, rue Gimelli. Tous les commerces, transports et commodités sont accessibles à pied. Dans la copropriété récente Le Fémina, construite en 2014. Aux finitions soignées. Appartement T3 en bon état, au 2ème étage avec ascenseur, d'une surface habitable de 49,7 m2 (Carrez). Il comprend : - salon / cuisine aménagée et équipée (four, hotte, table de cuisson, lave-vaisselle) - terrasse - 2 chambres avec placards aménagés - salle d'eau, wc indépendants Prestations : - Fenêtres en double vitrage PVC - Volets manuels bois, - Installation électrique moins de 15 ans (aucune anomalie) - DPE : B - Chauffage individuel électrique type radiants - Eau chaude et froide incluses dans les charges de copropriété. Possibilité d'acquérir en plus un garage pouvant accueillir une voiture taille moyenne et un scooter (34.500 EUR en sus). Vidéo sur : https://www.facebook.com/share/r/17UMGYbLmf/ Cette annonce vous est proposée par Alain ANELLO - - NoRSAC: 537945198, Enregistré à de Toulon
49.7 m²
4 145 €
19 m²
3
2
1
1
2 sur 6
194 € / mois
2014
Oui
1
Oui
1
Oui
Oui (50 lots)
Consommations énergétiques
Logement économe
67
Logement énergivore (kWhEP/m2/an)
Émissions de gaz à effet de serre
Faible émission de GES
8
Forte émission de GES(kgeqCO2/m2/an)
Contact ANELLO
Contacter gratuitement à l'aide du formulaire ci-dessous.