À VENDRE - FENOUILLET 31150 - APPARTEMENT T2 44M² AVEC UNE PLACE DE PARKING - PISCINE DANS LA RÉSIDENCE.
Découvrez cet appartement T2 lumineux de 44m² situé au premier étage dans une copropriété calme avec piscine et bien entretenue, proche de toutes les commodités.
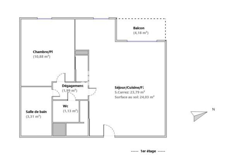
Il se compose d'une entrée avec placard, d'une cuisine moderne partiellement équipée ouverte sur le séjour donnant accès à un balcon.
Côté nuit, vous trouverez une chambre avec placard, une salle de bain et un WC séparé.
Une place de parking privative complète ce bien, idéal pour une résidence principale ou un investissement locatif.
Contactez-nous dès maintenant pour plus d'informations ou pour organiser une visite !
Votre conseiller HK HomeKare : Kevin MARTINEZ
Agent commercial (Entreprise individuelle).
HK HomeKare immobilier : VENTE - LOCATION - GESTION - SYNDIC
44 m²
3 182 €
2
1
1
1
2005
Coin cuisine
Sud
Ouest
Consommations énergétiques
Logement économe
222
Logement énergivore (kWhEP/m2/an)
Émissions de gaz à effet de serre
Faible émission de GES
8
Forte émission de GES(kgeqCO2/m2/an)
Contact Mathilde FONTES
Contacter gratuitement à l'aide du formulaire ci-dessous.