Axe FRANGY - SEYSSEL - Ancien hôtel restaurant à réhabiliter à proximité immédiate d'une zone artisanale. Construit sur un terrain de plus de 1 500 m2, bâtiment de 11 x 12 m d'emprise au sol en r+2 sur un sous-sol complet proposant une surface totale de 577 m².
Réhabilitation possible en logements et local commerciaux.
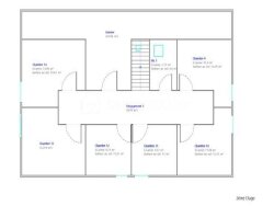
Actuellement le rdc dessert une cuisine, un cellier, deux salles à manger donnant sur un balcon, un appartement T1 de 28 m² avec balcon, un escalier d'accès au sous-sol et aux étages.
Les deux étapes accueillent 14 chambres au total avec pour chacune un point d'eau. Le sous-sol propose deux caves, un atelier, une chaufferie et un garage.
Une rénovation complète doit être envisagée.
Présence d'une annexe de 36 m², d'un bassin, d'une cour pour le stationnement et d'espaces verts.
Idéal investisseur. Dossier sur demande.
Cette annonce référence 294647 vous est présentée par votre agent commercial BSK Immobilier ISABELLE POEX (EIRL) immatriculé au RSAC de ANNECY (74000) sous le numéro 82918590900019.
Prix du bien : 349 000,00 €
Les honoraires d'agence sont à la charge du vendeur.
A propos des performances énergétiques :
Date de réalisation du diagnostic énergétique : 19/06/2025
Score DPE : 306 kWhEP/m²/an
Score GES : 96 kgepCO2/m²/an
Montant estimé des dépenses annuelles d'énergie pour un usage standard : entre 12980.00 € et 17610.00 € par an. Prix moyens des énergies indexés sur l'année 2023 (abonnements compris).
Les informations sur les risques auxquels ce bien est exposé sont disponibles sur le site Géorisques : www.georisques.gouv.fr
337 m²
1 036 €
18
1949
Consommations énergétiques
Logement économe
306
Logement énergivore (kWhEP/m2/an)
Émissions de gaz à effet de serre
Faible émission de GES
96
Forte émission de GES(kgeqCO2/m2/an)
Contact POEX
Contacter gratuitement à l'aide du formulaire ci-dessous.