Opportunité à saisir : créer une habitation familiale, investir dans un projet locatif ou de revente en plusieurs lots.
Samir Omais LF immo vous présente cet immeuble de 112 m² habitables à rénover entièrement dans le centre de Montpellier à proximité des commerces, écoles, station de tramway, gare saint roch.
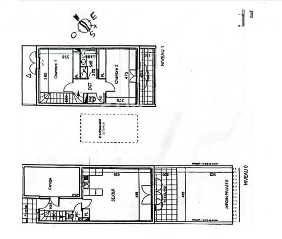
Ce bien libre de toute occupation est actuellement configuré en deux appartements distincts:
Rez-de-chaussée : Un futur appartement de 39 m² environ de type T2 comprenant une pièce de vie, une cuisine, une chambre et s'ouvrant sur une agréable cour privative de 40 m² environ.
Premier étage : Un appartement de 73 m² disposant d'un séjour spacieux et d'une cuisine séparée (possibilité de casser la cloison), de deux chambres, d'une salle d'eau, d'une terrasse de 6 m² environ orientée sud ouest.
Cet ensemble immobilier est déja divisé en lots de copropriété, un atout majeur pour un projet locatif ou de revente en plusieurs lots.
Contactez-moi dès maintenant pour une visite et laissez libre cours à votre imagination !
Bien soumis au statut de la copropriété, 2 logements, procédure en cours : aucune, 5 lots, Charges budget prévisionnel annuel 0 €.
Annonce publiée par Samir Omais (EI) votre agent commercial en immobilier LF immo à Montpellier, 34000 immatriculé au RSAC de Montpellier sous le n°921 295 887 000 19. Consultez nos tarifs sur le site LF immo.
Les informations sur les risques auxquels ce bien est exposé sont disponibles sur le site Géorisques : www.georisques.gouv.fr.
112 m²
2 009 €
5
Oui
Contact Samir Omais
Contacter gratuitement à l'aide du formulaire ci-dessous.