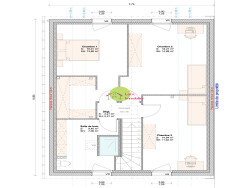
A INNENHEIM, rue du Général De Gaulle, découvrez cette maison sur ce charmant terrain de 340 m2 situé au centre du village. Nous vous proposons cette maison de 110 m2 au sol/96 m2 habitables livrée en PRET A DECORER. Un garage et un parking complètent ce bien. Cette maison vous permettra de profiter au rez-de-chaussée d'un salon séjour cuisine de 39,20 m2 donnant sur un jardin orienté plein Sud , d'une entrée avec espace placard et d'une salle d'eau avec toilettes. A l'étage, 3 agréables chambres à coucher (18,31m2, 18,21 m2 et 14,94 m2 au sol) ainsi qu'une salle de bain avec douche italienne et toilettes. Garage.
Sont ainsi compris : le terrain, la maison en PRET A DECORER, les taxes TLE/PAC, la garantie dommage-ouvrage. Notaire en sus : 8.900 Le permis de construire accordé.
Son orientation est optimale et vous permettra de positionner votre terrasse plein SUD. Terrain piscinable.
Cette maison est également proposée en version clos et couvert pour les bricoleurs au prix de 298.000 carrelage compris
Honoraires à la charge du vendeur. Non soumis au DPE. Les informations sur les risques auxquels ce bien est exposé sont disponibles sur le site Géorisques : georisques.gouv.fr.
Retrouvez l'annonce de l'agence immobilière LORIC IMMOBILIER sur : http://www.loricimmobilier.fr/immobilier/maison-individuelle-innenheim-vente-fr_VM988.htm
96 m²
4 010 €
39 m²
340 m²
5
3
1
1
2 (séparés)
01/05/2026
2025
Sud
1
1
Contact Sandra LORIC
Contacter gratuitement à l'aide du formulaire ci-dessous.