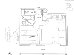
Investissement locatif sous bail commercial résidence de tourisme gérée Un appartement de type T2, au 6è étage portant le numéro 608, d'une surface de 28.39 m2, comprenant une entrée-dégagement, un séjour-kitchenette, une chambre, une salle de bains, wc, placards. Bail commercial du 1er octobre 2021 pour une durée de 9 ans, soit jusqu'au 30 septembre 2030. Un bail commercial récent, avec loyer purgé de toute baisse - Jusqu'à 5 semaines d'occupation en mai, juin, septembre et octobre Un balcon de 3.9 m2 Loyer perçu propriétaire annuel HT : 3175,00 EUR Charges générales de copropriété / an : 510,00 EUR Taxe foncière : 558,00 EUR Pour plus d'informations contactez Patrim Riviera tel 06.07.97.52.91
Bénéficiez de notre pôle dédié à l'achat : service courtage en financement , gestion locative, accompagnement juridique et fiscal.
28 m²
2 151 €
2
1
1
1
6
2008
Oui
Consommations énergétiques
Logement économe
161
Logement énergivore (kWhEP/m2/an)
Émissions de gaz à effet de serre
Faible émission de GES
26
Forte émission de GES(kgeqCO2/m2/an)
Contact PATRIM RIVIERA
Contacter gratuitement à l'aide du formulaire ci-dessous.