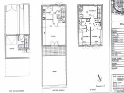
Juvignac au calme jolie pavillon R+1 de 87 m2 hab env avec garage, jardin et une cour. Maison composé en plain pied d'un garage, d'une cour de 35 m2 vous accèderez par l'escalier à un dégagement desservant une cuisine indépendante, un wc indépendant ainsi qu'au salon / séjour lumineux de 30 m2 avec accès à la terrasse de 11 m2 et jardin de 36 m2, au niveau supérieur vous trouverez un dégagement avec placard, une suite parentale avec sa salle d'eau, 2 chambres avec placards, un wc indépendant et une salle de bain. A voir rapidement !!! Prix de vente HAI 250 000 les honoraires sont à la charge des vendeurs. « Les informations sur les risques auxquels ce bien est exposé sont disponibles sur le site Géorisques www.georisques.gouv.fr ».
Honoraires à la charge du vendeur. Classe énergie C, Classe climat C Montant moyen estimé des dépenses annuelles d'énergie pour un usage standard, établi à partir des prix de l'énergie de l'année 2021 : entre 710.00 et 1020.00 . Les informations sur les risques auxquels ce bien est exposé sont disponibles sur le site Géorisques : georisques.gouv.fr.
87 m²
2 874 €
30 m²
180 m²
4
3
1
1
2 (séparés)
25.00 € / mois
2000
Est
Ouest
1
1
Oui
1
Oui
Consommations énergétiques
Logement économe
67
Logement énergivore (kWhEP/m2/an)
Émissions de gaz à effet de serre
Faible émission de GES
11
Forte émission de GES(kgeqCO2/m2/an)
Contact THIBAULT Mickael
Contacter gratuitement à l'aide du formulaire ci-dessous.