Villa comtemporaine JUVIGNAC - A saisir - GOLF DE FONTCAUDE
Juvignac 34990
0
Honoraires à la charge de l'acquéreur (Prix hors honoraires : 250000 euros).
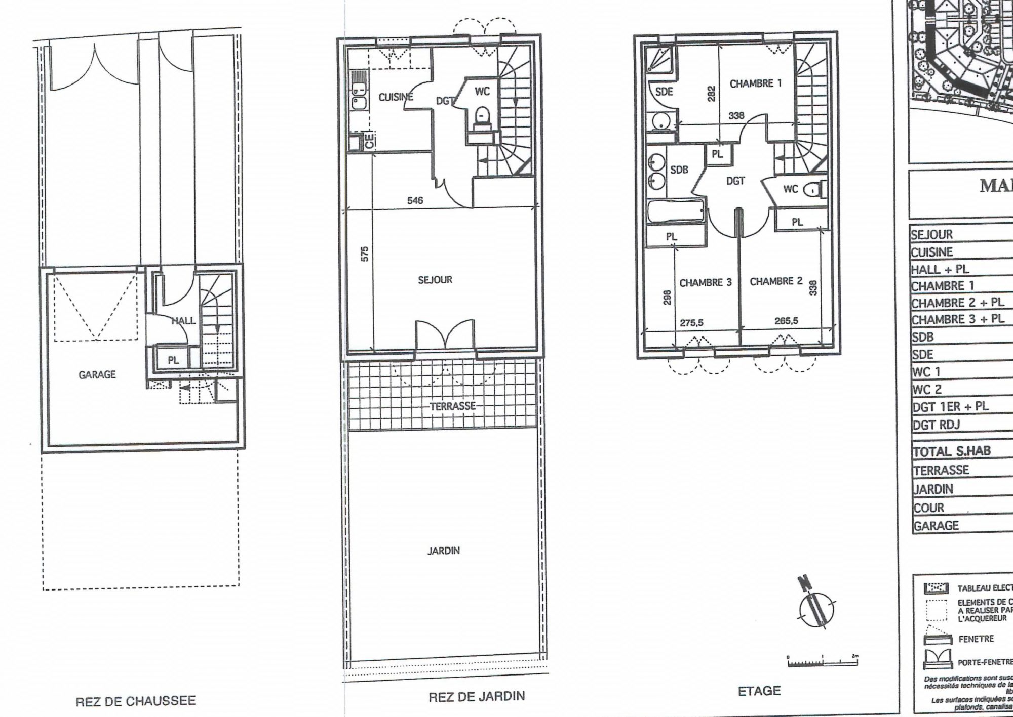
Juvignac - Golf de Fontcaude- Villa non mitoyenne de 108 m² sur un terrain de 400m² avec Garage
Cette villa de 108 m² est une opportunité unique située à proximité des commerces, des écoles et des transports. Elle est constituée d'un salon de 37m² avec une cuisine américaine. Au rez-de-chaussée, vous trouverez également une chambre de 10m² et un wc. A l'étage, vous trouverez 3 chambres dont une suite parentale avec dressing et salle d'eau. Une salle de bain et un wc complètent l'étage.
Vous disposerez en supplément d'un garage de 25m² et d'un cellier de 11m². L'ensemble est érigé sur un terrain piscinable de 400m² en angle qui surplombe. Le logement est équipée de la Climatisation gainable et d'un ballon thermodynamique.
La construction date de 2016. IL Y A UN DEFAUT SUR LES FONDATIONS QUI JUSTIFIE CE PRIX. PREVOIR DE LES REFAIRE.
Honoraires inclus de 6% TTC à la charge de l'acquéreur. Prix hors honoraires 250 000 . Non soumis au DPE. Les informations sur les risques auxquels ce bien est exposé sont disponibles sur le site Géorisques : georisques.gouv.fr.