Honoraires à la charge de l'acquéreur (Prix hors honoraires : 420000 euros).
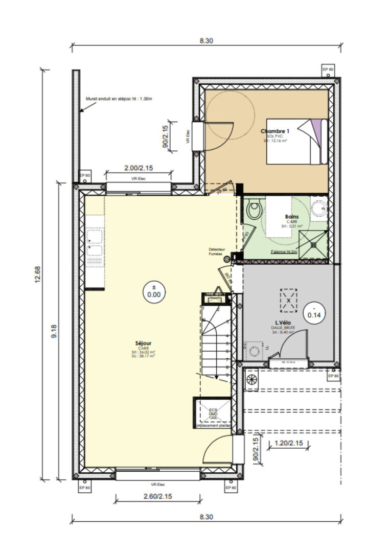
LA BERNERIE-EN-RETZ - A 200m de la plage dans un environnement calme, cette maison de 2008 offre 102m2 répartis sur deux niveaux avec garage attenant sur une parcelle close de 358m2. Le rez-de-chaussée se compose d'une entrée avec placard ouverte sur une pièce de vie lumineuse de 44m2 avec poêle à granulés et cuisine ouverte aménagée et équipée récente (décembre 2023). Un cellier et un WC complète la distribution de ce niveau. A l'étage, le palier dessert trois grandes chambres avec placards, une salle de bains complète avec douche et baignoire ainsi qu'un WC séparé. Un grand garage de 31m2 avec bagagerie et point d'eau complète l'ensemble. Une terrasse permet de profiter des extérieurs clos et sans vis-à-vis. Les informations sur les risques auxquels ce bien est exposé sont disponibles sur le site Géorisques www.georisques.gouv.fr (4.50 % honoraires TTC à la charge de l'acquéreur.)