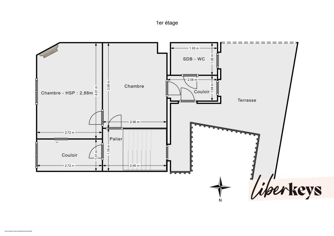
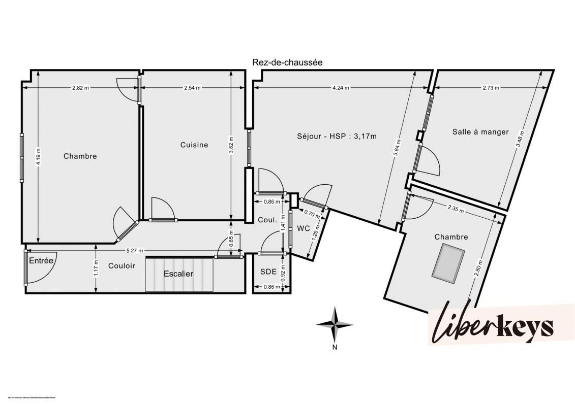
En exclusivité, L'Atelier Immobilier vous propose cette très jolie maison d'environ 80 m² qui allie le charme de l'ancien et le confort moderne dans un quartier calme et recherché de Saint Denis. Dès l'entrée, vous serez séduit par la jolie cuisine s'ouvrant sur le salon lumineux, créant ainsi une belle pièce à vivre pour partager les moments conviviaux en famille ou avec les amis. Vous apprécierez bien sur la superficie des deux chambres faisant chacune plus de 15m². Avec sa propre salle de bain, et ses nombreux rangements, une des deux chambres pourra d'ailleurs faire office de suite parentale. Une très jolie salle de douche indépendante et récemment rénovée vous offrira également encore plus de confort. Cette jolie maison accueillera idéalement un jeune couple ou une petite famille à la recherche d'un bel endroit pour se retrouver. Niché à l'abri des regards, ce véritable havre de paix vous séduira dès les premiers pas dans son jardin arboré, à l'atmosphère champêtre rare en milieu urbain.
À l'extérieur, vous profiterez d'un jardin bucolique, parfait pour les déjeuners au soleil, les siestes sous les arbres ou pour créer un potager en pleine ville. En bonus : un atelier, idéal pour un artiste, un bricoleur, créer une dépendance ou pour avoir du rangement supplémentaire.
Cette maison rare, pleine de charme, vous offrira l'illusion d'un coin de campagne...sans quitter la ville.
Vidéo sur le site diffuseur ou sinon sur demande.
80 m²
4 238 €
290 m²
3
2
1
1
Consommations énergétiques
Logement économe
236
Logement énergivore (kWhEP/m2/an)
Émissions de gaz à effet de serre
Faible émission de GES
7
Forte émission de GES(kgeqCO2/m2/an)
Contact Gwenael gwenael
Contacter gratuitement à l'aide du formulaire ci-dessous.