La Résidence du Lac - Belfort Appartement 3 pièces 70,41 m2
Belfort 90000
0
Honoraires à la charge du vendeur.
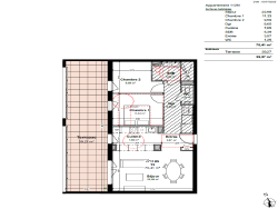
La Résidence du Lac - Belfort Appartement 3 pièces 70,41 m2 Le luxe de la nature à deux pas du centre ville. La Résidence du Lac vous propose un lieu de vie pensé pour le confort et la sérénité au quotidien. Vous serez séduit par : - Sa grande terrasse de 39,27m2 - Son séjour lumineux -2 Chambres confortables -Une salle de bain élégante. Un cadre de vie unique, situé dans un superbe parc paysager, à deux pas de l'étang des Forges, vous profitez d'un environnement paisible, verdoyant à seulement quelques minutes du centre-ville. Programme neuf répondant à la réglementation environnementale RE 2020. Etiquette classe A Contactez-nous dès maintenant pour organiser un rendez-vous et découvrir ce projet d'exception. Les informations sur les risques auxquels ce bien est exposé sont disponibles sur le site Géorisques : www.georisques.gouv.fr