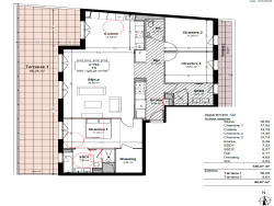
La Résidence du Lac - Belfort Attique 5 pièces 125,27 m2
Belfort 90000
0
Honoraires à la charge du vendeur.
La Résidence du Lac - Belfort Attique 5 pièces 125,27 m2 Le luxe de la nature à deux pas du centre ville. La Résidence du Lac vous propose un lieu de vie pensé pour le confort et la sérénité au quotidien. Vous serez séduit par : - 2 terrasses - Son séjour lumineux -3 Chambres confortables avec une suite parentale -Une salle de bain élégante. Un cadre de vie unique, situé dans un superbe parc paysager, à deux pas de l'étang des Forges, vous profitez d'un environnement paisible, verdoyant à seulement quelques minutes du centre-ville. Programme neuf répondant à la réglementation environnementale RE 2020. Etiquette classe A Contactez-nous dès maintenant pour organiser un rendez-vous et découvrir ce projet d'exception. Les informations sur les risques auxquels ce bien est exposé sont disponibles sur le site Géorisques : www.georisques.gouv.fr