LIMONEST CENTRE - APPARTEMENT T2 DE 64M2 EN REZ-DE-JARDIN ET
Limonest 69760
0
Honoraires à la charge du vendeur.
Au calme, Secteur Bois d'Ars-Agora, au COEUR DU VILLAGE DE LIMONEST, venez découvrir cette maison de 2024 d'environ 150 m2 habitables divisée en petite copropriété de deux appartements : La maison est bâtie avec menuiseries, volets, crépis, arrivée des réseaux, portail, portes d'accès, clôture du terrain, chemin d'accès bétonné etc....
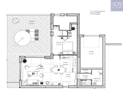
LES APPARTEMENTS SONT PERSONNALISABLES ET VISITABLES. Des plans sont disponibles et modifiables selon ses envies ET dans la limite des possibilités administratives et techniques. L'appartement T2 de 64m2 habitables est proposé en rez-de-jardin avec une terrasse de 58m2 et un espace jardin de 116m2 + Un parking privatif. Un T3 au 1er étage est également disponible à l'achat. Les prestations : -Menuiseries ALU de fabrication française sous DTA certifié CSBT. Vitrage gaz argon de marque KAWNEER avec rupteurs thermiques -Volets electriques de marque française BUBENDORFF (vitrage A2P anti effraction lorsqu'il n'y a pas de volets) -Portes pavillon avec serrure à 5 points -Portail profilé ALU
L'intérieur est personnalisable à votre goût : choisissez votre isolation, vos matériaux, vos équipements, votre agencement, votre décoration ! Des plans sont disponibles pour vous accompagner dans ce projet de création : 70.000EUR TTC de travaux de finition ont été budgétisés.
Pour visiter et vous projeter sur ce projet créatif, contactez directement Julie SILVY (agent commercial EI - RSAC 838469377) au 06 08 57 87 26
PRIX DE VENTE 250.000EUR FAI - Un devis chiffré de tous les travaux restants avec finitions a été établi pour 70.000EUR TTC.
Copropriété de 2 lots d'habitation. L'environnement est très calme, vous êtes à 250 mètres des commerces de la rue principale, 600 mètres de l'Agora Pôle culturel, et quelques pas des Ecoles, Collège et Lycée. Le BUS 21 est à 3 minutes à pied. Plusieurs JUNIORS pour les collèges, JEAN PHILIPPE RAMEAU (public Champagne au Mont d'Or) - FROMENTE ST FRANCOIS (privé St Didier au Mont d'Or) - INSTITUTION NOTRE DAME DE BELLEGARDE (privé Neuville s/ Saône) et LES LAZARISTES LA SALLE (privé de Limonest) JD35 - JD77 - JD183 - JD186 - JD621 - JD623
64 m²
3 906 €
2
1
1
1
2024
Ouest
1
1
Oui
Contact SILVY Julie
Contacter gratuitement à l'aide du formulaire ci-dessous.