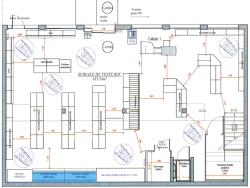
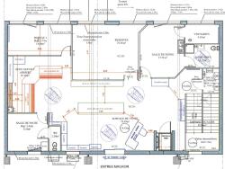
<p>Local très bien placé - composé de 2 niveaux de 200 m² avec ascenseur interne au normes PMR et ERP 5 - 6 stationnements privés au 1er niveau et nombreux stationnement libre devant l'entrée - hauteurs sous plafond 4.00 m au RDC et 2.65 m au 1er niveau - grandes vitrines - rideaux métalliques - télésurveillance - alarme incendie - chauffage aérotherme au RDC et climatisation réversible au 1er niveau - kitchenette - sanitaire privés avec douche - courant 220 et 380 V - gaz de ville - ADSL baie de brassage câblage RJ45.</p>
400 m²
1 055 €
Contact Fabienne LAUDON
Contacter gratuitement à l'aide du formulaire ci-dessous.