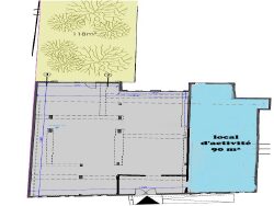
Face au jardin Botanique, local d'activité de 90 m² à aménager. Livré brut, avec arrivée eau et électricité. Normes PMR. Au pied des bus et future ligne 2 de tramway. Prix de vente: 241 500 FAI, honoraires charge vendeur (5%, 11 500 ), soit 230 000 Net Vendeur
Honoraires à la charge du vendeur. Dans une copropriété de 30 lots. Aucune procédure n'est en cours. DPE en cours. Les informations sur les risques auxquels ce bien est exposé sont disponibles sur le site Géorisques : georisques.gouv.fr.
Votre conseiller ANAIS FAGGIO IMMO : Gérante - Anais FAGGIO Carte T CPI37012025000000003 CCI TOURAINE RCP MMA IARD 127128662