Honoraires à la charge de l'acquéreur (Prix hors honoraires : 500000 euros).
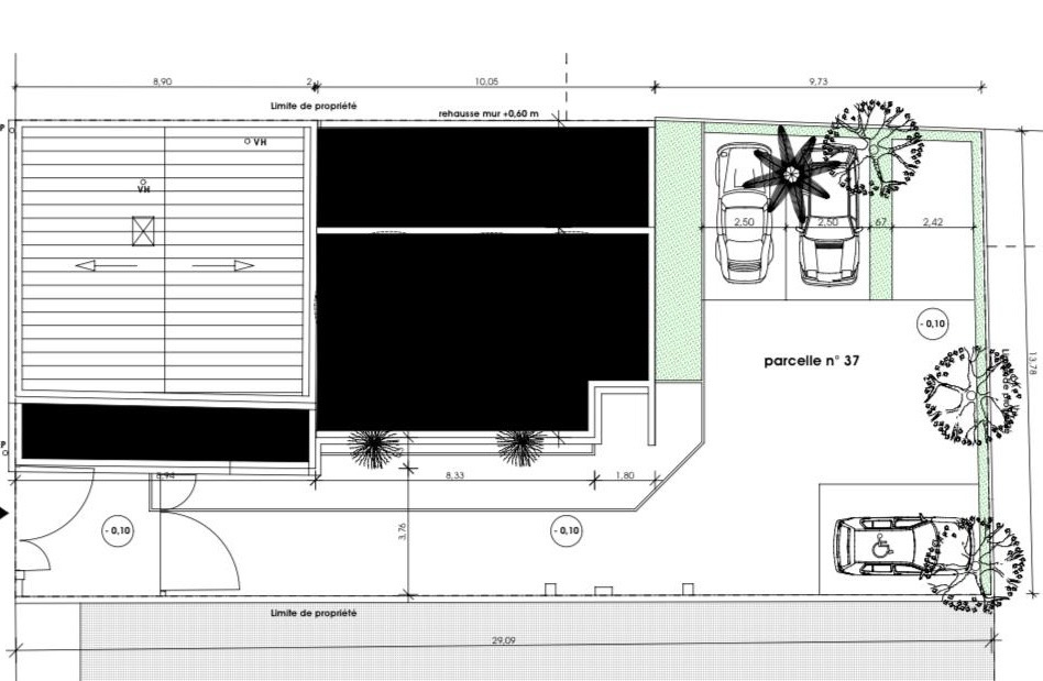
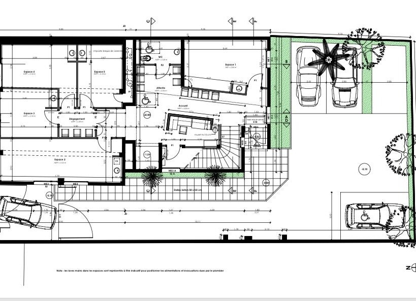
dans la zi de port de bouc un bâtiment de 1400m2 sur 4000m2 de terrain construction en VEFA parcelle de 200m2 plus mezzanine de 80m2 en bureaux parking extérieur et en sous sol , photovoltaïque en toiture possibilité d acheter plusieurs cellules jusqu'à 7 activité industrielle , artisanat ,etc
RESEAU BROKERS® est le premier cabinet immobilier d'entreprise structuré en réseau de mandataires. Nous maillons avec notre équipe de 80 Brokers une grande partie du territoire national pour accompagner nos entreprises clientes dans leurs recherches de commerces, bureaux, locaux d'activités, immeubles et fonciers. www.reseau-brokers.com
Honoraires inclus de 12% à la charge de l'acquéreur. Prix hors honoraires 500 000 . Dans une copropriété de 7 lots. Aucune procédure n'est en cours. DPE en cours. Les informations sur les risques auxquels ce bien est exposé sont disponibles sur le site Géorisques : georisques.gouv.fr.