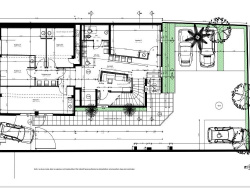
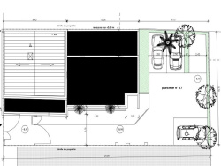
FIDUCIA IMMOBILIER vous présente à la vente les murs d'un centre médical en pleine propriéte d'une surface de 285m2 en R+1 sur une parcelle globale d'environ 400m2 et un terrain de 215m2. Immeuble de 2006 en bon état, extérieur a emmenager ( parkings ). Très bon DPE energétique ( B et A ). Acces, Ascenseur et Wcs aux normes PMR. PVC Double Vitrage, Volets roulants éléctriques, Climatisation réversible, Visiophone. Il se compose au RDC d'un espace acceuil avec salle d'attente, Wc et de cinq cabinets medicaux. A l'étage ( avec ascenseur ) salle d'attente et quatre cabinets médicaux + Wc. Taxe Foncière: 4182EUR Idéal acquisition pour profession médicale ou investissement. Actuellement libre de toute occupation. Dossier sur demande. Contact Fiducia Immobilier Christophe Brun inscrit au RSAC de Marseille sous le numéro 535349807. FIDUCIA IMMOBILIER L'Agence de la Corniche 199 Corniche Kennedy 13007 MARSEILLE
285 m²
2 140 €
2006
Oui
Oui
Oui
Consommations énergétiques
Logement économe
90
Logement énergivore (kWhEP/m2/an)
Émissions de gaz à effet de serre
Faible émission de GES
3
Forte émission de GES(kgeqCO2/m2/an)
Contact BRUN Christophe
Contacter gratuitement à l'aide du formulaire ci-dessous.