Honoraires à la charge de l'acquéreur (Prix hors honoraires : 0 euros).
Les charges de location sont prévisionnelles mensuelles avec régularisation annuelle.
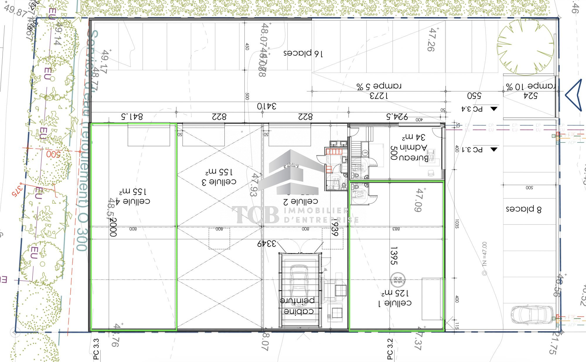
Saint-Herblain à 700m d' ATLANTIS à 350m du Tramway François Mitterrand et périphérique. A Louer, au sein d'un ensemble neuf de 08 Lots, 1 bâtiment d'activité/entrepôt de 205.25 M² se répartissant en 1 Cellule de 105 M² en RDC plus 1 Grand Plateau de Bureau à l'Étage de 100 M² . Portail sectionnel motorisé en façade. 2 Places dans Parkings
Provision sur charges 33,33 HT/mois, régularisation annuelle. Dépôt de garantie 3 288 . DPE vierge. Les informations sur les risques auxquels ce bien est exposé sont disponibles sur le site Géorisques : georisques.gouv.fr.
Entrepôt
205 m²
33.33 € / mois
2024
2
Contact immo pro ouest
Contacter gratuitement à l'aide du formulaire ci-dessous.