LOFT/ATELIER D'EXCEPTION AU C?UR DU VILLAGE FAIDHERBE ? 173 M² AVEC PATIO VITRÉ DE 18 M²
PARIS 11e ? Entre les rues Paul Bert et de Charonne, niché au c?ur du très recherché Village Faidherbe, ce bien d'exception vous propose une adresse confidentielle et prisée, à proximité immédiate des stations Faidherbe-Chaligny (L8) et Charonne (L9).
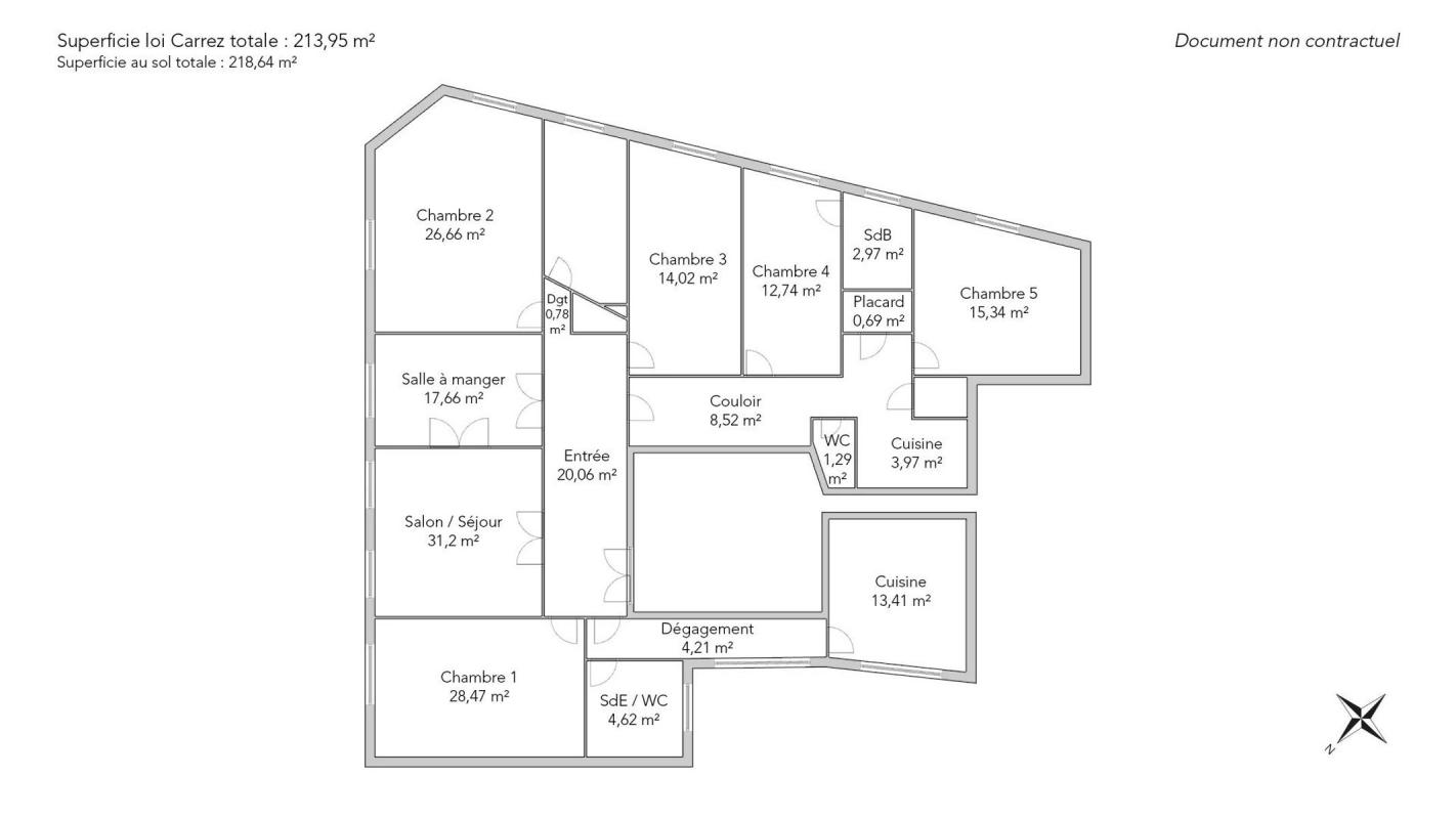
Situé dans un immeuble de caractère en pierre de taille datant de 1890, cet ancien atelier d'artiste a été repensé en loft contemporain de 173 m² (dont un patio vitré privatif de 18 m²), offrant une lumière naturelle remarquable et une atmosphère unique.
De plain-pied, l'espace s'articule autour d'une pièce de vie spectaculaire de 50 m² sous verrière, baignée de lumière naturelle.
La cuisine équipée haut de gamme, la double entrée indépendante sur rue et la grande hauteur sous plafond confèrent à ce lieu un caractère unique, à la fois élégant et fonctionnel.
Le bien comprend également une salle d'eau avec WC, un second WC indépendant, et offre de nombreuses possibilités d'aménagement (jusqu'à 3 ou 4 espaces bureaux ou chambres).
Classé ERP, il convient parfaitement à une galerie, un showroom, bureau, boutique haut de gamme, un cabinet libéral ou un espace de sport ou bien-être.
Calme absolu, prestations de qualité, copropriété soignée et aucune procédure en cours.?
Un bien rare, à la croisée du résidentiel et du professionnel, où volumes, lumière et confidentialité se conjuguent avec élégance.
Libre - Aucun bail en cours
Ancien loyer mensuel perçu : 10 000 €/mois
Faibles charges : 176 €/mois
Taxe foncière : 1 662 € (2024)
Chauffage individuel électrique.
Bien soumis au statut de la copropriété.
Copropriété : 15 lots
Visites et renseignements 7j/7
Honoraires d'agence à la charge du vendeur.
Les informations sur les risques auxquels ce bien est exposé sont disponibles sur le site Géorisques : www.georisques.gouv.fr
Les informations sur les risques auxquels ce bien est exposé sont disponibles sur le site Georisque : georisques. gouv. fr
Yvan Guinard - EI - est Agent Commercial mandataire en immobilier, immatriculé au Registre Spécial des Agents Commerciaux du Tribunal de Commerce de Créteil sous le n°528999535.
Siège social du mandant : effiCity, 48 avenue de Villiers - 75017 PARIS - Société par Actions Simplifiée, société au capital de 132 373,05 euros, immatriculée au RCS Paris 497 617 746 et titulaire de la Carte professionnelle CPI 7501 2015 000 002 025 - CCI Paris IDF - Caisse de Garantie : GALIAN Assurances 89 rue de la Boétie 75008 Paris
173 m²
12 428 €
50 m²
5
3
1
2
1890
Oui
Oui
Consommations énergétiques
Logement économe
330
Logement énergivore (kWhEP/m2/an)
Émissions de gaz à effet de serre
Faible émission de GES
11
Forte émission de GES(kgeqCO2/m2/an)
Contact M. Yvan Guinard
Contacter gratuitement à l'aide du formulaire ci-dessous.