Goodshowcase

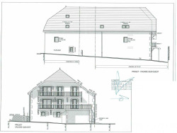
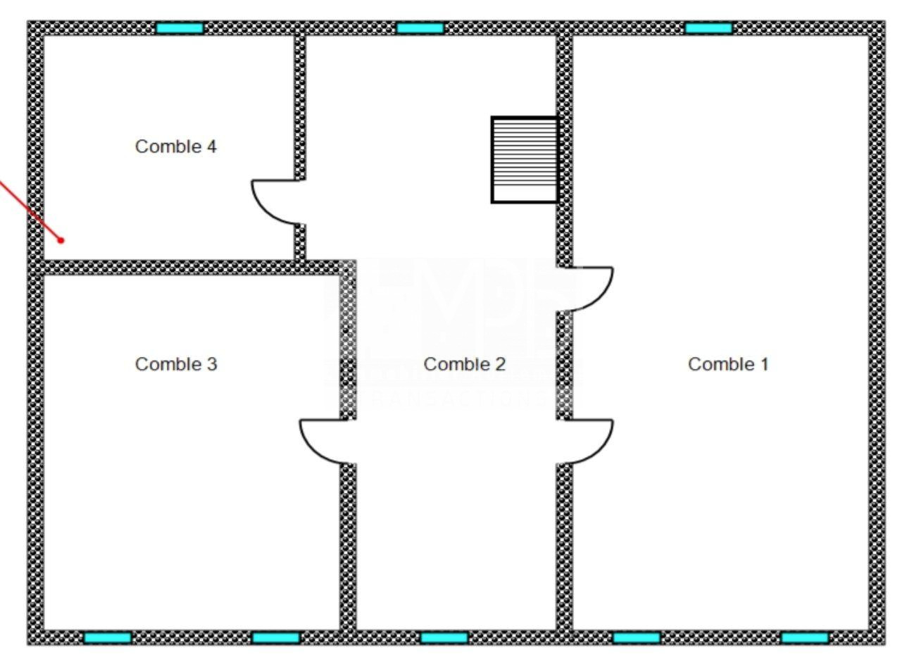
Vente maison 6 pièces
315 000 €

Contact Matesa Immobilier

Contacter gratuitement à l'aide du formulaire ci-dessous.


Afficher le téléphone


Annonces similaires

Vente maison

Champfromier 01410 - 0

315 000 €

...La maison est composée de deux salons, deux cuisines, six chambres, WC et une salle d'eau...

Voir l'annonce

Vente maison

Échallon 01130 - 0

329 000 €

...Cette belle maison de village offre de très beaux volumes et de nombreuses possibilités pour un...

Voir l'annonce

Vente maison

Lent 01240 - 0

299 000 €

...Ce bien se prête particulièrement à la création de logements supplémentaires grâce à une...

Voir l'annonce

Vente maison

Farges 01550 - 0

318 000 €

...Cette bâtisse offre un potentiel habitable d'au moins 360 m2 ainsi que la possibilité de réaliser...

Voir l'annonce

Vente maison

Échallon 01130 - 0

329 000 €

...Elle se compose :AU REZ-DE-CHAUSSEE : bar avec terrasse , salle de restaurant d'une surface...

Voir l'annonce