Goodshowcase

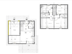
Vente maison 4 pièces
528 000 €

Annonces similaires

Vente maison

Annecy 74600 - 0

494 400 €

...Les excellentes prestations intérieures et extérieures en feront un lieu propice au bien-être et...

Voir l'annonce

Vente maison

Annecy 74960 - 0

519 000 €

...Dès l'entrée, vous serez séduit par son agencement fonctionnel et ses prestations soignées : ?...

Voir l'annonce

Vente maison

Annecy 74940 - 0

498 000 €

...Parcelle de 422 m² et garage Thierry DUCRET (EI) Agent Commercial - Numéro RSAC : 333 042 604 -...

Voir l'annonce

Vente maison

Annecy 74940 - 0

492 000 €

...Le plain-pied est consacré à la pièce de vie avec accès terrasse et l'étage est dédié au coin...

Voir l'annonce