LYON 5 POINT DU JOUR APPARTEMENT TYPE 2 2EME ETAGE AVEC ASCE
Lyon 69005
0
Honoraires à la charge du vendeur.
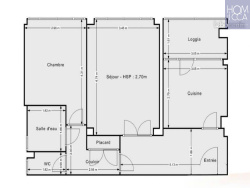
Situé dans le quartier recherché du Point du Jour, à proximité immédiate de Trion, cet appartement de type 2 de 56 m2 habitables (52 m2 Carrez) se trouve au 2ème étage sur 6 d'une résidence bien entretenue avec ascenseur. Il se compose d'une entrée accueillante, d'une cuisine indépendante ouvrant sur une loggia de 4 m2 orientée Nord-Est et offrant une vue dégagée sans vis-à-vis. Le séjour, actuellement recouvert de moquette, dissimule un beau parquet d'origine. Un espace nuit comprend la chambre de 10,5m2 en parquet, un dégagement avec placard intégré, une salle d'eau avec douche à l'italienne et fenêtre ainsi qu'un WC séparé avec fenêtre. Un réagencement est possible : vous pouvez créer une pièce de vie de 26 m2 avec cuisine ouverte sur le séjour et une chambre donnant sur la loggia, pour un agencement moderne et fonctionnel (voir plan modifié sur la dernière photo) En sous-sol, une cave saine offre un espace de rangement supplémentaire. Une place de parking privative extérieure est incluse dans le prix. Les charges de copropriété incluent : chauffage, eau chaude et froide, entretien des espaces verts, gardien, ascenseur et syndic. La rénovation énergétique de l'immeuble a été votée en AG et à la charge intégrale du vendeur : isolation de la façade par l'extérieur, réfection étanchéité de la façade, installation d'une VMC, panneaux photovoltaïques, réfection chauffage Vous apprécierez la luminosité, l'absence de vis-à-vis et la vue sur le Mont Verdun. Les bus C20, C20E, 46 et 49 sont au pied de l'immeuble et la gare Perrache est accessible en 10 minutes. * VISITE VIRTUELLE DISPONIBLE * Son prix est de 175.000EUR Pour visiter et vous accompagner dans votre projet, contactez Christophe AVON, directeur d'agence au 06.82.16.24.75. Agence Homicca www.homicca.fr
56 m²
3 125 €
16 m²
2
1
1
1
2 sur 6
190 € / mois
1964
Est
Nord
Oui
Oui
1
Oui
Oui
Oui
Oui (45 lots)
Consommations énergétiques
Logement économe
297
Logement énergivore (kWhEP/m2/an)
Émissions de gaz à effet de serre
Faible émission de GES
65
Forte émission de GES(kgeqCO2/m2/an)
Contact AVON Christophe
Contacter gratuitement à l'aide du formulaire ci-dessous.