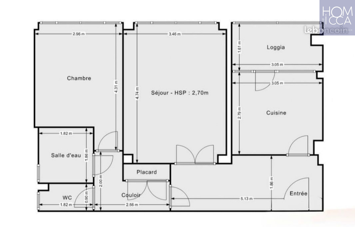
Résidence L'Orée du Bois Lyon 5, proche Tassin-la-Demi-Lune Appartement T2/T3 de 73 m2 avec balcon et garage.Situé au 3ème étage sur 5, il offre une vue dégagée, sans aucun vis-à-vis, dans un cadre calme et verdoyant. Traversant et lumineux grâce à ses grandes baies vitrées, il bénéficie d'un accès direct au balcon. Agencement optimisé : Hall d'entrée avec grand dressing/cellier Séjour / salle à manger de 32 m2 (possibilité de recréer une 2ème chambre) Chambre de 14,36 m2 Cuisine indépendante de 9,68 m2 Buanderie, salle d'eau et WC séparés Loggia/séchoir de 1,67 m2 Balcon de 5,45 m2 avec vue dégagée Cave de 8 m2 au sous-sol Garage fermé de 13,80 m2 (sécurisé avec bip, en supplément au prix de 15 000 HAI) La résidence, fermée et sécurisée, est particulièrement bien entretenue. Elle propose des espaces verts, un cadre agréable et la présence d'un gardien. Commerces, écoles et TCL sont accessibles à pied. Points forts : Vue imprenable avec de la profondeur Appartement très lumineux Résidence calme et recherchée Chauffage et eau chaude collectifs Travaux de rafraîchissement à prévoir, beau potentiel à exploiter Informations techniques et loi ALUR : Appartement en copropriété de 402 Lots principaux. Chauffage collectif, tout-à-l'égout, menuiserie en double vitrage. Charges exercice 2024: 232.32/mois comprenant l'eau froide, l'eau chaude, chauffage,l'entretien de la copropriété et la masse. Soit un coût annuel de 2788. Pas de procédure connue à ce jour. Taxe foncière 2024 : 1165. Prix : 184 000 euros honoraires d'agence charge vendeurs inclus Statut agent immobilier EI Pour plus d'informations ou pour organiser une visite, contactez Xavier au 06 20 19 21 82 Agence Mathieu Guérin Immobilier.
Honoraires à la charge du vendeur. Dans une copropriété de 1243 lots. Aucune procédure n'est en cours. Classe énergie D, Classe climat D Montant estimé des dépenses annuelles d'énergie pour un usage standard : entre 1030.00 et 1440.00 sur les années 2021, 2022 et 2023 (abonnements compris). Les informations sur les risques auxquels ce bien est exposé sont disponibles sur le site Géorisques : georisques.gouv.fr.