Magnifique Appartement T5 - Deux Terrasses - Parkings
Bordeaux 33000
0
Honoraires à la charge du vendeur.
UN ÉCRIN DE VIE AU COEUR DE BORDEAUX
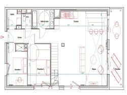
Idéalement situé en plein coeur de Bordeaux, venez découvrir ce superbe appartement T5 de 123 m², aux volumes généreux et à la luminosité exceptionnelle.
Au premier niveau, vous serez séduit par une vaste pièce de vie de 48 m², baignée de lumière grâce à ses larges ouvertures et son exposition sud. Vous profiterez également d'un cellier, de 2 chambres, d'une salle de bain et d'un WC indépendant.
À l'étage, retrouvez deux chambres supplémentaires, dont une bénéficiant d'un dressing, ainsi qu'une salle de bain avec WC.
L'appartement dispose d'une terrasse à chaque niveau : l'une de 13 m², accessible depuis l'espace de vie, et l'autre de 20 m², à l'étage, offrant un espace extérieur agréable et sans vis-à-vis.
Deux places de parking couvertes et sécurisées complètent ce bien (en supplément). Frais de notaire réduits RT 2012 Garanties Éligible PTZ Disponible UN ÉCRIN DE VIE AU COEUR DE BORDEAUX
Honoraires à la charge du vendeur. Dans une copropriété de 135 lots. Aucune procédure n'est en cours. Non soumis au DPE. Les informations sur les risques auxquels ce bien est exposé sont disponibles sur le site Géorisques : georisques.gouv.fr.