MAGNIFIQUE DUPLEX DE 96,81m2 AVEC TERRASSE ET JARDIN
Jonage 69330
0
Honoraires à la charge du vendeur.
MAGNIFIQUE DUPLEX DE 96,81m2 AVEC TERRASSE ET JARDIN-RESIDENCE
Situé au coeur de Jonage, à seulement quelques minutes à pied du centre, des commerces, écoles et transports, venez découvrir ce joli T5 duplex avec terrasse et jardin. Ce bel appartement se situe au RDJ et 1 er étage d'une résidence intimiste de standing et sécurisée de 2024
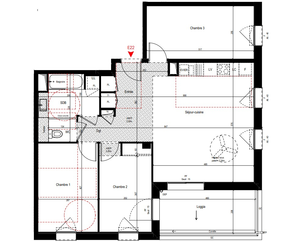
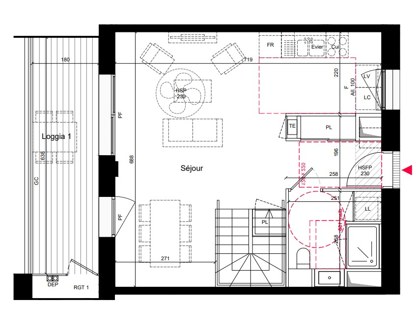
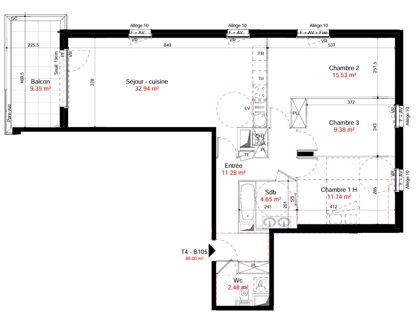
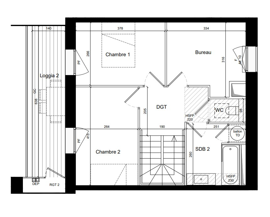
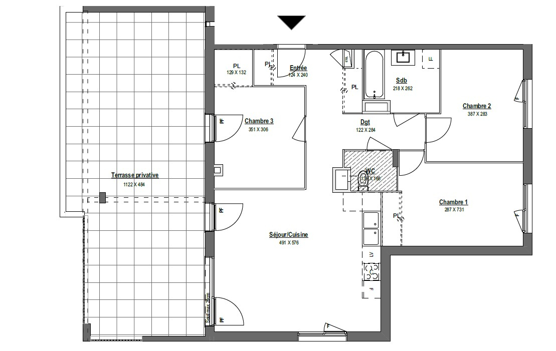
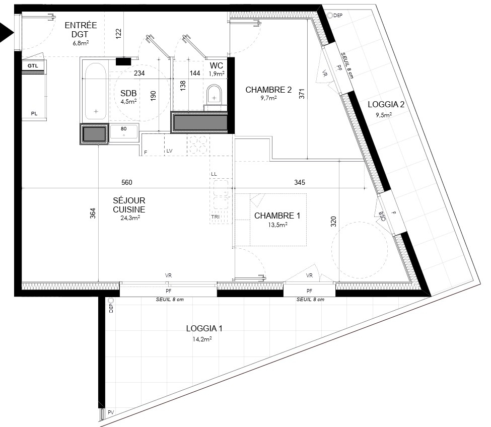
Il se compose au premier niveau d' une pièce de vie avec cuisine ouverte donnant la terrasse, d'un cellier, de deux chambres, d'une salle d'eau et un WC indépendant. Une volée de marches mènent au niveau supérieur où se côtoient deux chambres, une salle d'eau et d'un WC.
Un garage (double box) vous est proposé en sus à 19 000.
L'environnement calme, le cadre, les prestations de qualité et la localisation de ce bien est un cadre de vie unique aux portes de Lyon.
On aime: - Les belles prestations - Résidence fermée et sécurisée - Les faibles charges énergétiques - Le quartier résidentiel, proche du centre - Les frais de notaire réduits - Eligible aux prêt taux zero - Garantie Décennale - DPE C - RT 2012
Info pratiques: -Trois crèches, une école maternelle et une école primaire sont à proximité - Commerces et commodités à proximité - Collège et Lycée à 10 min en voiture
Bien soumis au statut de la copropriété. Nombre de lots
Envie d'en savoir plus sur cet appartement? Prenez contact avec: Ana Pereira - 0650325974 a.pereira@pietrapolis.fr Agent immobilier ( 843 047 838 R.S.A.C )Observations
Honoraires à la charge du vendeur. Dans une copropriété de 30 lots. Aucune procédure n'est en cours. Classe énergie C, Classe climat C Montant moyen estimé des dépenses annuelles d'énergie pour un usage standard, établi à partir des prix de l'énergie de l'année 2023 : entre 720.00 et 1040.00 . Les informations sur les risques auxquels ce bien est exposé sont disponibles sur le site Géorisques : georisques.gouv.fr.