OPPORTUNITE RARE ET DISPONIBLE IMMEDIATEMENT : VILLA T4 AU CALME ET SANS-A-VIS.
THIBAULT : O6 14 25 12 25
Sur la commune très recherchée de Mauguio, à proximité immédiate de l'A9 et des plages, à 10 minutes à pied du centre du village, de son marché et de toutes les commodités (pharmacie, école, supermarché, médecin, poste, etc.), dans une ruelle calme et sans vis-à-vis, la franchise immobilière a le plaisir de vous présenter cette superbe villa moderne T4 de 2026, d'environ 102 m², édifiée sur une parcelle arborée de 190 m².
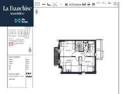
La villa se compose, au rez-de-chaussée, d'une belle et lumineuse pièce de vie de plus de 35 m² avec cuisine américaine, bénéficiant d'une exposition sud-ouest. Vous y trouverez également un cellier, un WC séparé ainsi qu'une salle d'eau.
À l'étage, l'espace nuit, entièrement revêtu de parquet, accueille trois chambres, une salle de bains et un second WC indépendant.
Située en position dominante d'angle, la villa bénéficie d'une exposition privilégiée et d'une intimité renforcée. Son jardin privatif parfaitement agencé vous permettra de profiter de 135 m² d'exterieur, entièrement aménageable et sans perte d'espace, offrant un cadre idéal pour créer un véritable écrin extérieur selon vos envies.
Villa en parfait état, aux prestations soignées et aux finitions impeccables. Vous n'aurez qu'à poser vos valises : aucun travaux à prévoir. Un bien clé en main.
Disponible immédiatement et à visiter de toute urgence.
DPE : A / A THIBAULT : O6 14 25 12 25
Honoraires à la charge du vendeur. Dans une copropriété de 17 lots. Aucune procédure n'est en cours. Classe énergie A, Classe climat A Montant estimé des dépenses annuelles d'énergie pour un usage standard : entre 300.00 et 1000.00 sur les années 2021, 2022 et 2023 (abonnements compris). Les informations sur les risques auxquels ce bien est exposé sont disponibles sur le site Géorisques : georisques.gouv.fr.