Maison - Plain-pied - 3 Chambres - Jardin plat et clôturé
Saint-Pierre-de-Chandieu 69780
0
La Team Maugé vous présente cette magnifique maison récente et moderne de plain-pied, idéalement située à deux pas du parc de Rajat et proche de toutes les commodités.
Elle offre 3 chambres, dont une suite parentale, une belle pièce de vie baignée de lumière et un grand jardin entièrement clos.
Avec son DPE A et ses prestations de qualité, cette maison combine confort, modernité et efficacité énergétique.
Il n'y a aucun travaux à prévoir, vous pouvez poser vos valises et profiter !
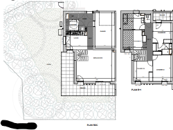
Disposition de la maison :
- Pièce de vie ouverte sur le jardin : 57m²
- Cellier buanderie : 4,63m²
- Chambres avec placards muraux : 11,11m²_11,11m²
- Chambre parentale avec salle d'eau privée et armoire dressing : 16,81m²
- Salle de bains avec baignoire et double vasques : 4,55m²
- WC séparés
Les caractéristiques de ce bien :
- Maison de plain pied, construite en 2016 par Pierre Avenir
- Surface habitable de 108m² environ
- Parcelle de 843m², piscinable, entièrement clôturée
- Jardin arboré et paysagé
- Chemin d'accès en indivision avec un accès privatif pour les indivisaires
- Cuisine entièrement équipée ouverte sur le séjour
- Système de pompe à chaleur pour chauffage et rafraichissement au sol
- Fenêtres en double vitrage PVC et volets roulants électriques centralisés
- VMC simple flux
- Taxe foncière de 1175€ pour 2025
- DPE 55 (A) GES 1 (A)
- Estimation des dépenses énergétiques annuelles : Entre 550€ et 770€ (année de référence 2023)
- À titre indicatif, les propriétaires actuels dépensent environ 1760€ d'électricité par an.
- Les informations sur les risques auxquels ce bien est exposé sont disponibles sur le site Géorisques : www.georisques.gouv.fr
- Honoraires charge vendeur
Kathleen MEUNIER
Agent Commercial Immobilier
RSAC 895 038 594 délivré à Vienne
EI
MAUGÉ Immobilier
SASU au capital de 10.000 €
RCS n°893 649 889 délivré à Vienne
CPI n°38022021000000004 délivrée par la CCI Nord-Isère
À très vite !
La Team MAUGÉ Immobilier
110 m²
3 818 €
57 m²
843 m²
4
3
1
1
2016
Consommations énergétiques
Logement économe
55
Logement énergivore (kWhEP/m2/an)
Émissions de gaz à effet de serre
Faible émission de GES
1
Forte émission de GES(kgeqCO2/m2/an)
Contact Kathleen Meunier
Contacter gratuitement à l'aide du formulaire ci-dessous.