La Team MAUGÉ vous propose cette maison individuelle pleine de potentiel à Saint-Pierre-de-Chandieu. Avec un extérieur agréable et un accès direct au jardin depuis la pièce de vie très lumineuse, ce bien vous promet de beaux moments de convivialité. Son grand garage attenant et ses possibilités d'aménagement intérieur vous offrent une opportunité unique de personnalisation. Vous recherchez une maison de plain-pied avec un bel espace extérieur et proche des commodités ? Cette propriété est faite pour vous !
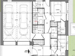
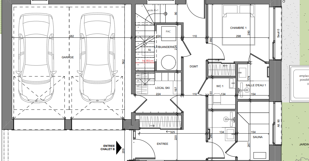
Disposition de la maison:
- Pièce de vie avec cuisine ouverte, traversante Est-Ouest : 45m²
- Chambres avec placards muraux : 10,80m²_10,96m²_11,01m²_22,10m²
- Salle d'eau avec double vasques : 6,15m²
- WC séparés
- Cellier-buanderie
- Garage indépendant d'environ 40m²
Les caractéristiques de ce bien :
- Maison de 2002
- Surface de 110m² environ
- Parcelle de 843m²
- Maison de plain-pied
- 4 Chambres
- Grand garage avec porte coulissante manuelle d'environ 40m²
- Portail manuel avec arrivée électrique
- Fenêtres double vitrage en bois avec volets bois
- Chauffage par poêle à granules et radiateurs électriques
- Taxe foncière de 1250€
- DPE 188 (D) GES 6 (B)
- Estimation des dépenses énergétiques annuelles : Entre 1640€ et 2290€ (année de référence 2023)
- Les informations sur les risques auxquels ce bien est exposé sont disponibles sur le site Géorisques : www.georisques.gouv.fr
- Honoraires charge vendeur
Kathleen MEUNIER
Agent Commercial Immobilier
RSAC 895 038 594 délivré à Vienne
EI
MAUGÉ Immobilier
SASU au capital de 10.000 €
RCS n°893 649 889 délivré à Vienne
CPI n°38022021000000004 délivrée par la CCI Nord-Isère
À très vite !
La Team MAUGÉ Immobilier
110 m²
3 582 €
45 m²
843 m²
5
4
1
1
2002
Consommations énergétiques
Logement économe
188
Logement énergivore (kWhEP/m2/an)
Émissions de gaz à effet de serre
Faible émission de GES
6
Forte émission de GES(kgeqCO2/m2/an)
Contact Kathleen Meunier
Contacter gratuitement à l'aide du formulaire ci-dessous.