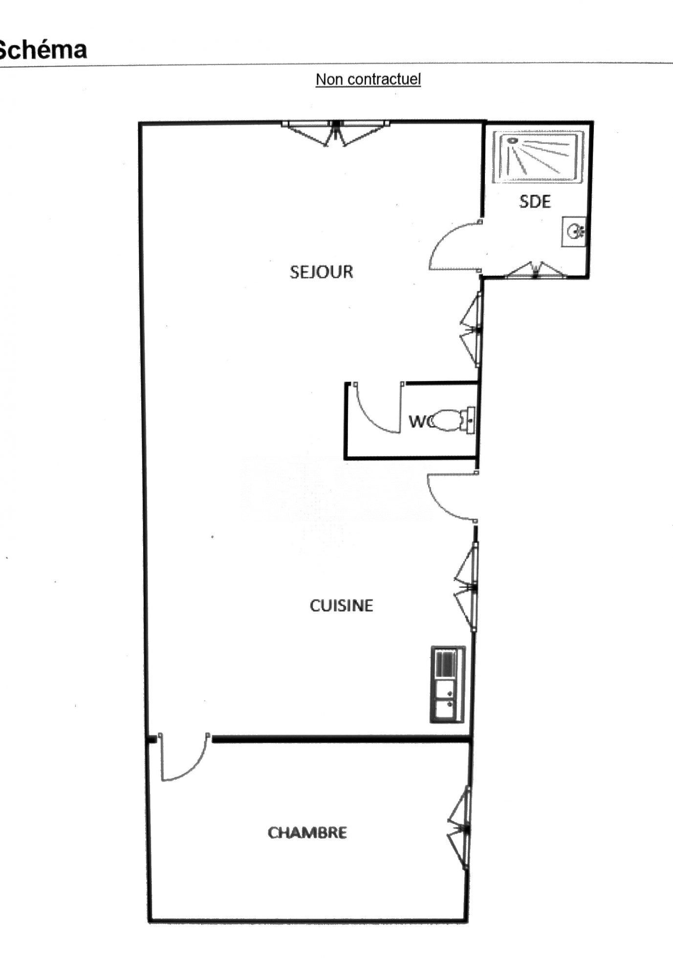
<p style="text-align:start;"><strong>Exclusivité - Quartier du Viel Avon : Parcelle Constructible avec Bâti Existant</strong></p><p style="text-align:start;">Découvrez cette parcelle constructible rare dans le secteur, située dans le prisé Quartier du Viel Avon, offrant un potentiel exceptionnel pour un projet immobilier. Actuellement, elle comprend une maison de plain-pied d'environ 74 m² à réhabiliter entièrement, avec une rénovation totale à prévoir. En outre, vous aurez la possibilité d'ériger une maison neuve en complément, parfait pour concrétiser vos ambitions résidentielles !</p><p style="text-align:start;">Cette propriété se distingue par son jardin arboré, offrant un cadre de vie paisible et sans vis-à-vis, idéal pour profiter de moments de détente en toute intimité.</p><p style="text-align:start;">Idéalement située dans un environnement calme, cette parcelle est à proximité immédiate des commerces, des écoles, du parc du château, de la forêt, ainsi que d'un arrêt de bus à seulement 2 minutes de la gare, facilitant ainsi vos déplacements.</p><p style="text-align:start;">Que vous soyez un particulier désireux de bâtir votre résidence principale tout en profitant d'un espace existant (atelier, annexe ou logement secondaire), ou un investisseur à la recherche d'un potentiel de développement, cette parcelle représente une opportunité à ne pas manquer.</p><p style="text-align:start;">La viabilisation est à prévoir, avec les réseaux à proximité.</p><p style="text-align:start;"><strong>Secteur recherché - RARE, À VISITER SANS TARDER !</strong> </p><p>Ce bien proposé par Victor ALVES tél : 06 50 70 75 83 - agent commercial (EI) rsac 882769862</p>
Honoraires partagés entre le vendeur et l'acquéreur.
Prix 267500€ honoraires à la charge de l'acquéreur exclus.
Honoraires de 7500€ TTC à la charge de l'acquéreur.
Les informations sur les risques auxquels ce bien est exposé sont disponibles sur le site Géorisques : http://www.georisques.gouv.fr .
54 m²
4 537 €
788 m²
3
1
1
1
1950
Oui
Consommations énergétiques
Logement économe
515
Logement énergivore (kWhEP/m2/an)
Émissions de gaz à effet de serre
Faible émission de GES
15
Forte émission de GES(kgeqCO2/m2/an)
Contact Victor ALVES
Contacter gratuitement à l'aide du formulaire ci-dessous.