35220 - CHATEAUBOURG - 35530 - SERVON-SUR-VILAINE - 7 PIÈCES - 5 CHAMBRES - 250 m² - MAISON AVEC PARC de 5000 m² et DÉPENDANCES - ENVIRONNEMENT CALME
effiCity, l'agence qui estime votre bien en ligne, vous propose cette superbe demeure située à Servon-sur-Vilaine, offrant un cadre de vie exceptionnel.
Maison d'exception 7 pièces ? 250?m² + annexe de 55 m²
---
Points forts
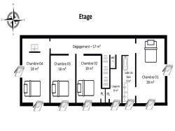
Surface généreuse : 250?m² habitables, sur deux niveaux
5 chambres, 1 salle d'eau et 1 salle de bains
Séjour lumineux de 65?m² avec cheminée ouverte
Parc clôturé et arboré de 5?000?m²
Terrasse de 200 m² idéalement exposée Sud
Dépendance de 42?m², belle opportunité d'aménagement, voire de location pour un complément de revenus
Stationnement généreux : 2 garages, 1 box pouvant accueillir un camping-car de 6m, 10 places extérieures
---
Caractéristiques techniques
Maison reconstruite en 1984, façades en pierre & brique, toit en ardoise
Chauffage & eau chaude : individuels, électrique, ballon de 200 litres
Bon état général : électricité, plomberie, sols et façades entretenus
---
Environnement & localisation
Cadre calme & verdoyant, idéal pour se ressourcer
Proximité transports : gare (TER Rennes?Vitré), réseau BreizhGo desservant Rennes
Commune agréable, riche en patrimoine, à 15?km de Rennes
---
Diagnostic énergétique
Classe énergie?: D ? 202?kWh/m².an
Estimations annuelles : 3?030?4?140?€ pour consommation chauffage & eau chaude
Classe climat?: B, émissions?: 6?kg CO?/m².an
---
À qui s'adresse ce bien ?
Familles recherchant de l'espace & du calme, jeune retraités ayant plein de projets, artistes
Amateurs de rénovation / extension (dépendance + combles)
Investisseurs ou projets professionnels dans un cadre atypique
---
Contact
Patrick Nouaux ? Consultant immobilier
Mandataire EFFICITY ? Thorigné?Fouillard
+33?6?82?31?69?22
Demandez une visite dès maintenant ? ce bien d'exception ne restera pas disponible longtemps !
Les informations sur les risques auxquels ce bien est exposé sont disponibles sur le site Georisque : georisques. gouv. fr
Patrick Nouaux - EI - est Agent Commercial mandataire en immobilier, immatriculé au Registre Spécial des Agents Commerciaux du Tribunal de Commerce de Rennes sous le n°880862339.
Siège social du mandant : effiCity, 48 avenue de Villiers - 75017 PARIS - Société par Actions Simplifiée, société au capital de 132 373,05 euros, immatriculée au RCS Paris 497 617 746 et titulaire de la Carte professionnelle CPI 7501 2015 000 002 025 - CCI Paris IDF - Caisse de Garantie : GALIAN Assurances 89 rue de la Boétie 75008 Paris
250 m²
2 330 €
65 m²
5000 m²
7
5
2
1
2
1984
Sud
Oui
Oui
Consommations énergétiques
Logement économe
202
Logement énergivore (kWhEP/m2/an)
Émissions de gaz à effet de serre
Faible émission de GES
6
Forte émission de GES(kgeqCO2/m2/an)
Contact Patrick NOUAUX
Contacter gratuitement à l'aide du formulaire ci-dessous.