44410 - HERBIGNAC - POMPAS - CENTRE VILLE - 8 PIECES - 3 CHAMBRES - 113M² PRÊTS A VIVRE- 236M2 À RÉNOVER-EMPLACEMENT IDÉAL AU CALME
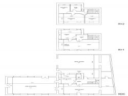
Antoine MIQUEL et efficity, l'agence qui estime votre bien en ligne, vous proposent ce bien T4 prêt à vivre avec au 1er étage votre salon/séjour de belle surface, une cuisine équipée en chêne massif sur beau carrelage, puis au 2ème étage, vos 3 chambres et grande salle d'eau, WC.
Située au c?ur du centre-ville, ce bien chaleureux offre de très belles possibilités d'aménagements pour de la revente ou de la location (facile à gérer car vous serez sur place en tant que propriétaires)
- un T2 est alors possible en Rdc très rapidement avec peu de travaux
- avec plus de travaux que le T2 précédents : une grande salle de réception toujours au RDC faisant 77m2 et une pièce de 20m2 seront divisibles en 2 appartements indépendants avec mezzanine pour faire un T2 et un T3.
Un atelier d'artiste, des bureaux professionnels ou cabinet restent tout à fait possibles pour cet espace de 97m2.
À l'arrière, un 4eme espace attend vos idées pour un autre T3 possible.
Certes, cela nécessite des travaux, mais ce bien représente une opportunité rare d'agrandissement, de transformation et de valorisation selon vos finances, en y allant étape par étape en rénovant un par un et en revendant un par un pour autofinancer largement l'achat de votre bien principal avec la rénovation de seulement 2 appartements sur les 4 qui seront possibles.
Ce lieu s'adresse donc aux investisseurs visionnaires, aux marchands de biens en quête de potentiel, mais aussi aux familles audacieuses qui souhaitent se lancer dans l'aventure de l'investissement pour partir en retraite plus tôt, ou une famille qui souhaiterait mêler vie personnelle et projet professionnel dans un même espace.
Une maison pas comme les autres, qui séduira ceux qui voient plus loin que des murs et un toit : ceux qui voient un terrain d'expression, une opportunité et une liberté.
5 à 6 places de stationnement intérieur et 3 places extérieures pour garer facilement vos véhicules et ceux de vos acheteurs ou locataires éventuels.
La pompe à chaleur est quasiment neuve et permettra de distribuer les appartements.
Les informations sur les risques auxquels ce bien est exposé sont disponibles sur le site Georisque : georisques. gouv. fr
Antoine Miquel - EI - est Agent Commercial mandataire en immobilier, immatriculé au Registre Spécial des Agents Commerciaux du Tribunal de Commerce de Saint-Nazaire sous le n°508558376.
Siège social du mandant : effiCity, 48 avenue de Villiers - 75017 PARIS - Société par Actions Simplifiée, société au capital de 132 373,05 euros, immatriculée au RCS Paris 497 617 746 et titulaire de la Carte professionnelle CPI 7501 2015 000 002 025 - CCI Paris IDF - Caisse de Garantie : GALIAN Assurances 89 rue de la Boétie 75008 Paris
169 m²
2 899 €
700 m²
8
3
1
2
1900
Sud
Oui
Oui
Consommations énergétiques
Logement économe
175
Logement énergivore (kWhEP/m2/an)
Émissions de gaz à effet de serre
Faible émission de GES
5
Forte émission de GES(kgeqCO2/m2/an)
Contact M. Antoine Miquel
Contacter gratuitement à l'aide du formulaire ci-dessous.