74600 VIEUX SEYNOD - MAISON 78M² - TERRAIN 220M² - 3 CHAMBRES - 2 PLACES DE PARKING - ECO-QUARTIER - PRESTATIONS HAUT-DE-GAMME
Au sein du grand Annecy, venez découvrir cette charmante maison au sein d'un petit lotissement de 8 lots implantée sur un terrain plat et ensoleillé.
Les excellentes prestations intérieures et extérieures en feront un lieu propice au bien-être et à la détente.
Efficity, l'agence qui estime votre bien en ligne et Antoine BRISSAUD vous proposent cette maison de 78m² judicieusement répartie sur 2 étages afin d'optimiser chaque espace.
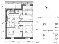
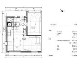
Le bien est composé de la façon suivante :
REZ-DE-CHAUSSÉE :
-1 garage accessible depuis la maison
-1 WC
-1 pièce de vie de 29m² ouverte sur la terrasse
1ER ÉTAGE :
-2 chambres
-1 suite parentale avec salle d'eau et dressing
-1 WC séparé
-1 salle de bain
EXTÉRIEUR :
-1 place de parking privative
-1 terrasse de 7m²
-1 jardin de 220m²
PRESTATIONS INTÉRIEURES :
-Carrelage 60x60 et parquet massif
-Menuiseries en aluminium
-Volets roulants électriques
-Chauffage au sol au RDC et à l'étage via pompe à chaleur (PAC)
PRESTATIONS EXTÉRIEURES :
-Bardage bois composites
- Isolation aux normes RE2020
-Toit végétalisé
-Compost et maison à insectes
CÔTÉ PRATIQUE :
-École primaire 500m / collège lycée 1km
-Supermarché 700m²
-Bus ligne 4 à 500m
-Péage Annecy centre 5min
Les informations sur les risques auxquels ce bien est exposé sont disponibles sur le site Georisque : georisques. gouv. fr
Antoine Brissaud - EI - est Agent Commercial mandataire en immobilier, immatriculé au Registre Spécial des Agents Commerciaux du Tribunal de Commerce de Annecy sous le n°938374295.
Siège social du mandant : effiCity, 48 avenue de Villiers - 75017 PARIS - Société par Actions Simplifiée, société au capital de 132 373,05 euros, immatriculée au RCS Paris 497 617 746 et titulaire de la Carte professionnelle CPI 7501 2015 000 002 025 - CCI Paris IDF - Caisse de Garantie : GALIAN Assurances 89 rue de la Boétie 75008 Paris
78 m²
5 923 €
28 m²
200 m²
4
3
1
2
2026
Ouest
Oui
Oui
Consommations énergétiques
Logement économe
10
Logement énergivore (kWhEP/m2/an)
Émissions de gaz à effet de serre
Faible émission de GES
1
Forte émission de GES(kgeqCO2/m2/an)
Contact M. Antoine Brissaud
Contacter gratuitement à l'aide du formulaire ci-dessous.