Venez découvrir cette maison de type T4, située à Mions. Cette maison est mitoyenne des deux côtés.
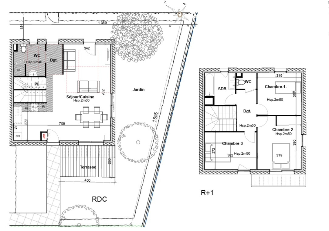
Au rez-de-chaussée, vous trouverez une cuisine semi ouverte sur un salon/séjour donnant sur une terrasse à l'arrière de la maison. Vous y retrouverez également un WC séparés. À l'étage, un dégagement dessert trois chambres, une salle de bains avec WC séparés offrant ainsi un espace nuit fonctionnel et adapté aux besoins de toute la famille.
En complément, la maison dispose de deux jardins à l'avant et l'arrière de celle-ci ainsi que d'un garage en sous-sol et de deux places de parking à ciel ouvert.
Un bien idéal pour une famille ou un premier achat, à découvrir rapidement ! 'les informations sur les risques auxquels ce bien est exposé sont disponibles sur le site Géorisques : www.georisques.gouv.fr'
Bien soumis au statut de la copropriété. Nombre de lots de copropriété : 78. Charges de copropriété : 63.52 / Mois Pas de procédure en cours. Honoraires à la charge du vendeur.
Réf : 141
Honoraires à la charge du vendeur. Dans une copropriété de 78 lots. Aucune procédure n'est en cours. Classe énergie C, Classe climat C Montant estimé des dépenses annuelles d'énergie pour un usage standard : entre 1030.00 et 1450.00 sur les années 2021, 2022 et 2023 (abonnements compris). Les informations sur les risques auxquels ce bien est exposé sont disponibles sur le site Géorisques : georisques.gouv.fr.
88 m²
3 955 €
4
3
1
2 (séparés)
63.52 € / mois
2010
3
Oui (78 lots)
Consommations énergétiques
Logement économe
114
Logement énergivore (kWhEP/m2/an)
Émissions de gaz à effet de serre
Faible émission de GES
21
Forte émission de GES(kgeqCO2/m2/an)
Contact Maxime BARATIN
Contacter gratuitement à l'aide du formulaire ci-dessous.