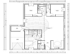
<p>Sur MEDIS, dans un quartier résidentiel calme proche des commodités, nous vous proposons cette jolie villa de de plain-pied, totalisant 140 m2 hab sur une parcelle de 506 m2.</p><p>On retrouve une entrée avec placards et WC séparé, un vaste salon/séjour de 68 m2 très agréable et lumineux, une cuisine équipée et aménagée, un WC séparé, une suite parentale avec salle d'eau et un second WC séparé, 2 chambres supplémentaires avec placards, une SDB et un troisième WC séparé.</p><p>Cellier et garage de 20 m2.</p><p>Aucun vis à vis ni de mitoyenneté.</p><p style="text-align:start;">Normes PMR, garantie décennale et d'achèvement. Chauffage par PAC air/eau (chauffage au sol). Carrelage 60x60 dans la partie jour et carrelage imitation parquet dans la partie nuit. Douches à l'italienne, wc suspendus. Volets roulants électriques. Cuisines IXINA aménagée et équipée. Volets roulants électriques. Jardin clôturé. Place de parking privative devant garage. </p><p>N'hésitez pas, contactez Marc GARCIA, agent REMAX, au 06 82 73 40 48.</p>
Honoraires à la charge du vendeur.
Les informations sur les risques auxquels ce bien est exposé sont disponibles sur le site Géorisques : www.georisques.gouv.fr .
150 m²
3 040 €
551 m²
5
4
2
3
2023
Oui
Contact Marc Garcia
Contacter gratuitement à l'aide du formulaire ci-dessous.