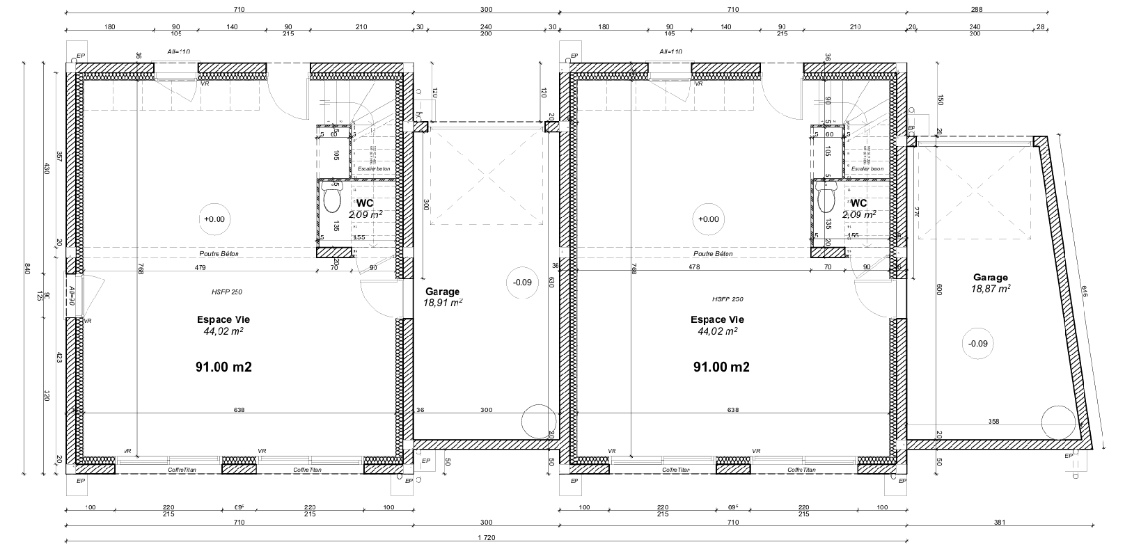
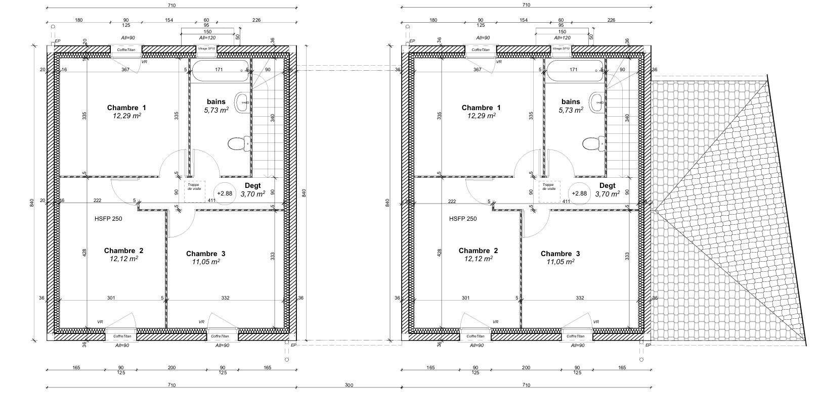
Zefir vous propose à la vente cette maison de 4 pièces de 88 m² située à Villefontaine.
Idéal pour les familles et primo-accédants.
Cette maison est aménagée de la manière suivante :
- Séjour exposé Sud-Est,
- Trois chambres,
- Une cuisine ouverte et équipée
- Une salle de douche,
- WC séparé,
- Un garage.
Atouts :
- 2 terrasses dont une avec une pergola,
- Piscine hors sol à remettre en fonction,
- Chauffage électrique + poêle à granulés,
- Un garage pour stationner votre véhicule.
Parce que la localisation ça compte aussi :
- Arrêt de bus à environ 4 min à pied,
- Commerces de proximité à environ 5 min à pied,
- École maternelle et primaire à environ 2 min à pied,
- Collège Louis Aragon à environ 10 min à pied,
- Médiathèque / Maison de la Culture à environ 6 min à pied,
- Parc de la mairie à environ 7 min à pied.
Caractéristiques techniques :
- Charges de lotissement : 50 €/mois,
- Mode de chauffage : Électrique + poêle à granulés,
- Distribution eau : Individuelle.
Les informations sur les risques auxquels ce bien est exposé sont disponibles sur le site Géorisques : (http://www.georisques.gouv.fr/)
Intéressés ? Contactez Zefir pour visiter ce bien.