Plongée dans un écrin de verdure, St-Paul-de-Varces se situe en amont de la vallée du Lavanchon et fait partie intégrante du parc naturel régional du Vercors.
Bénéficiant d'un emplacement clé au coeur du village, vous pourrez rejoindre les premiers commerces, déposer les enfants à l'école ou à la crèche, profiter des activités au sein de la salle
Polyvalente, pratiquer la randonnée et les balades en forêt en sortant de chez vous.
A PIED : Arrêt de bus L46 à 5 min, Café-Restaurant à 5 min, École maternelle, élémentaire et crèche à 5 min, Gymnase tennis à 10 min
EN VOITURE : Stade à 5 min, Supermarché à 10 min, Grenoble à 20 min (sortie directe A51).
Vue exceptionnelle sur les massifs du Vercors jardin partagé
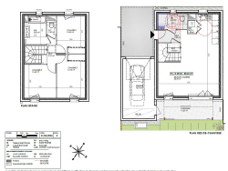
3 maisons T4 de 89.50 m² à partir de 371000 euros
selon emplacement et terrain.
Norme RT 2012 -10 % - Prestations haut de gamme
Pour choisir et vous accompagner dans votre projet, contactez Bernard ECARNOT, au 06 07 55 80 68 ou par courriel à b.ecarnot@proprietes-privees.com
Selon l'article L.561.5 du Code Monétaire et Financier, pour l'organisation de la visite, la présentation d'une pièce d'identité vous sera demandée. Cette présente annonce a été rédigée sous la responsabilité éditoriale de Bernard ECARNOT agissant sous le statut d'agent commercial immatriculé au RSAC 383370558 auprès de SAS PROPRIETES PRIVEES, au capital de 44 920 euros, ZAC LE CHÊNE FERRÉ - 44 ALLÉE DES CINQ CONTINENTS 44120 VERTOU; SIRET 487 624 777 00040, RCS Nantes. Carte Professionnelle Transactions sur immeubles et fonds de commerce (T) et Gestion immobilière (G) n°CPI 4401 2016 000 010 388 délivrée par la CCI Nantes - Saint Nazaire. Compte séquestre n°30932508467 BPA SAINT-SEBASTIEN-SUR-LOIRE (44230). Garantie GALIAN-SMABTP - 89 rue de la Boétie, 75008 Paris - n°28137 J pour 2 000 000 euros pour T et 120 000 euros pour G. Assurance responsabilité civile professionnelle par GALIAN-SMABTP n° de police 28137.J
Mandat réf : 422846TRIBCN. Le professionnel garantit et sécurise votre projet immobilier
Copropriété de 98 lots - dont 52 lots habitation. () nr Charges annuelles : 1000 euros.
Bernard ECARNOT (EI) Agent Commercial - Numéro RSAC : 383370558 - .
89 m²
4 169 €
35 m²
4
3
1
2
Sud
Est
Oui
Contact Bernard ECARNOT
Contacter gratuitement à l'aide du formulaire ci-dessous.