Maison neuve à construire CYPRES_3CH_94_V1
A ne pas manquer! Lotissement de seulement 12 lots au sein d'un petit village proche du bourg d'Aigrefeuille sur Maine.
Cap au sud sur ce beau terrain de 474 m² qui vous permettra une maison de plain-pied ou une maison à étage selon vos souhaits.
BELLE MAISON DE 3 CHAMBRES
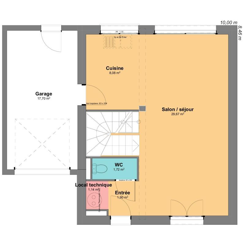
Avec ses 94 m² habitables avant agrandissement, 3 chambres et une pièce de vie modulable de 41 m², la Cyprès combine espace, style et évolutivité. Son architecture affirmée séduit au premier regard. À l'intérieur, des volumes généreux, un double garage pour les passionnés, et des espaces pensés pour toute la famille. Du caractère, du confort, et surtout? une maison qui vous ressemble.
Maison prête à décorer parmi nos centaines de modèles de maisons à découvrir sur Maisons-Alysia(.com)
? Lumineuse avec cuisine ouverte donnant sur son jardin.
? Aménagements et équipements de haut niveau : volets roulants motorisés, système de chauffage par pompe à chaleur, carrelage grand format et plein d'autres possible.
? Les prix les plus bas constatés sur le marché.
Venez créer en ligne et gratuitement votre future maison en quelques minutes grâce à notre configurateur et chiffrez instantanément votre projet dès maintenant.
Toutes nos maisons répondent à la RE 2020 qui permet d'atteindre la classe énergétique A = économies à la clef!
Contactez nous au O2 55 59 60 85 pour finaliser votre projet !
Hors peintures, faïence, revêtements de sol des chambres, cuisine, meuble de salle de bain.
Hors assurance dommages-ouvrage, frais de notaire et frais d'adaptation du terrain éventuels.
Sous réserve de disponibilité chez notre partenaire foncier qui vend le terrain.
Contact : au 02 56 53 16 62.