Située sur le bourg et au sein d'une grande bulle de verdure, cette maison familiale dispose, chose rare , d'une double vie de plain pied.
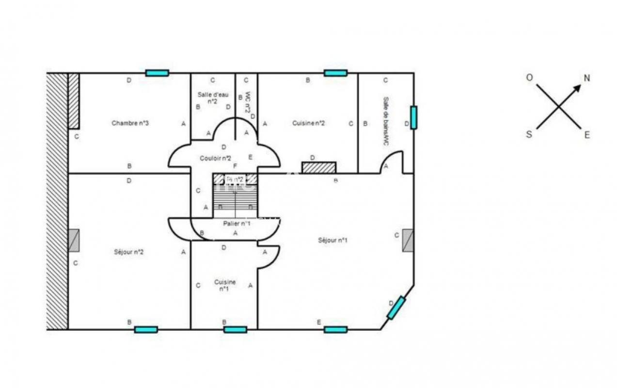
L'entrée s'ouvre sur une pièce de vie composée d'un séjour, puis d'un salon et d'une cuisine.
Toujours en rez-de-chaussée, mais côté nuit se trouvent 2 chambres, un bureau, un WC et une salle de bains.
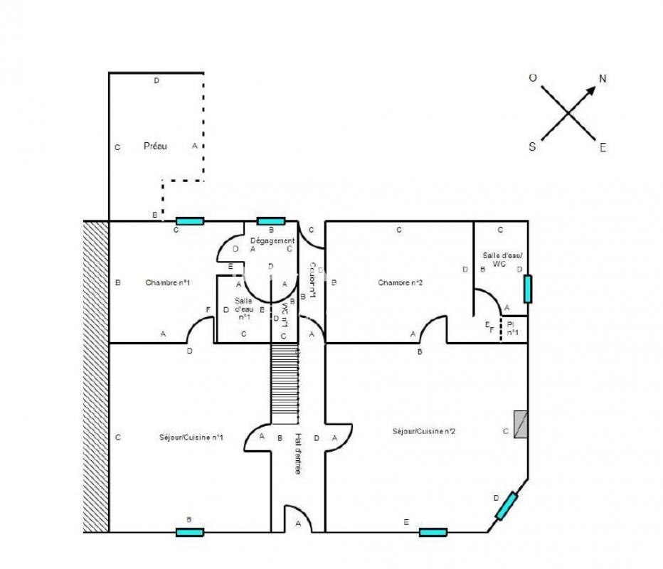
L'étage dispose également de 2 autres chambres, d'un WC et d'une salle de bains.
Le tout est édifié sur sous-sol complet et sur un terrain d'environ 2800m². (6.74 % honoraires TTC à la charge de l'acquéreur.)
Les informations sur les risques auxquels ce bien est exposé sont disponibles sur le site Géorisques : www. georisques. gouv. fr
143 m²
1 194 €
2800 m²
5
4
2
2
1948
Oui
Consommations énergétiques
Logement économe
296
Logement énergivore (kWhEP/m2/an)
Émissions de gaz à effet de serre
Faible émission de GES
93
Forte émission de GES(kgeqCO2/m2/an)
Contact ParkI
Contacter gratuitement à l'aide du formulaire ci-dessous.