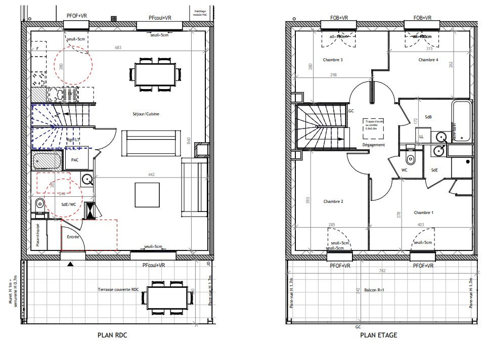
Sur la charmante commune de Taponas, à 5 min de Belleville, venez découvrir cette maison d'une surface de 175 m2 sur une parcelle de terrain de 1700 m2, entièrement clôturée avec piscine et vue dégagée, au calme. Au RDC, on retrouve un grand séjour de 45 m2 donnant sur la terrasse côté piscine, une cuisine équipée séparée de 14.5 m2 donnant également sur l'extérieur, des WC, une buanderie, une salle de jeux, un grand garage et une cave. L'étage se compose de 4 chambres dont une de 14 m2 avec un coin mezzanine (vide sur séjour), des WC, une salle de bain et un bureau. A l'extérieur, un coin terrasse avec barbecue, four à pizza, terrain de pétanque, et piscine. Construite en 1992, cette maison située hors lotissement, est en bon état général et très bien entretenue. Cependant, quelques travaux de rafraichissement sont nécessaires pour remettre cette maison au goût du jour. Prestations : Piscine 11x5 (construite en 2012) Chauffage au fioul (contrat d'entretien annuel) / Chauffage au sol basse température Fenêtres double vitrage thermique PVC / Volets PVC Puit fonctionnel (eau courante) Situation : A 100 mètres de l'école de Taponas et arrêt bus scolaire (Collège et Lycée à 5 min à Belleville). A proximité de toutes les commodités à Belleville-en-Beaujolais (5 min), Villefranche-sur-saône (15 min) et Lyon (40 min) via autoroute A6. DPE : D (126) GES : D (36)
Villa
175 m²
2 686 €
45 m²
1700 m²
6
4
1
1
2
1992
Sud
4
2
Oui
Consommations énergétiques
Logement économe
126
Logement énergivore (kWhEP/m2/an)
Émissions de gaz à effet de serre
Faible émission de GES
36
Forte émission de GES(kgeqCO2/m2/an)
Contact Aurélie Carrière Et Associés Immobilier
Contacter gratuitement à l'aide du formulaire ci-dessous.